Te koop Benedenverdieping

Beschrijving van   

Vergelijk realty's

Te koop Benedenverdieping

Benedenverdieping Benedenverdieping Benedenverdieping
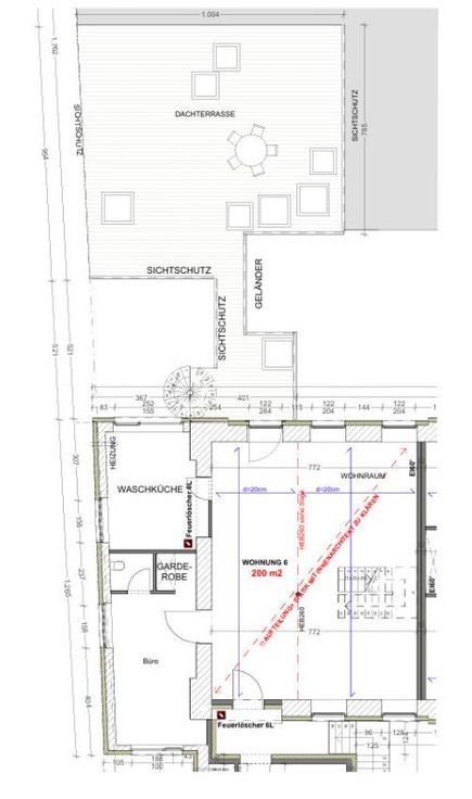
Découvrez notre nouveau projet résidentiel exceptionnel au cœur de la ville basse d'Eupen, dans un environnement calme proche des forêts. Ce développement comprend 13 appartements de haute qualité qui combinent confort moderne et possibilités d'investissement. Caractéristiques du projet : Des appartements variés : Faites votre choix parmi des appartements d'une superficie de 62 à 196 m², qui conviennent aussi bien à la location qu'à l'usage personnel. Confort optimal : chaque appartement a été conçu pour offrir un espace de vie confortable et fonctionnel, avec des équipements de qualité. Personnalisation : les dispositions intérieures peuvent être adaptées en fonction de vos souhaits et de vos préférences, ce qui vous permet de créer un espace qui correspond à votre style. Jardin et/ou terrasse : tous les appartements disposent d'un jardin et/ou d'une terrasse, inclus dans le prix, qui offrent un espace de vie supplémentaire en plein air. Avantages financiers : Régime de vente avantageux : profitez d'un impôt foncier réduit à 12,5 % au lieu de 21 %, ce qui représente une économie substantielle. Ce projet représente une opportunité unique d'investir dans un environnement calme tout en restant proche des commodités urbaines. Ne manquez pas l'occasion de devenir propriétaire d'un bien immobilier exceptionnel à Eupen. Pour plus d'informations ou pour convenir d'une visite, n'hésitez pas à nous contacter.
Type vastgoed Appartement
Prijs 556.000
Aantal slaapkamers 2
Aantal badkamers 1