Te koop Huis

Beschrijving van   

Vergelijk realty's

Te koop Huis

Huis Huis Huis Huis Huis
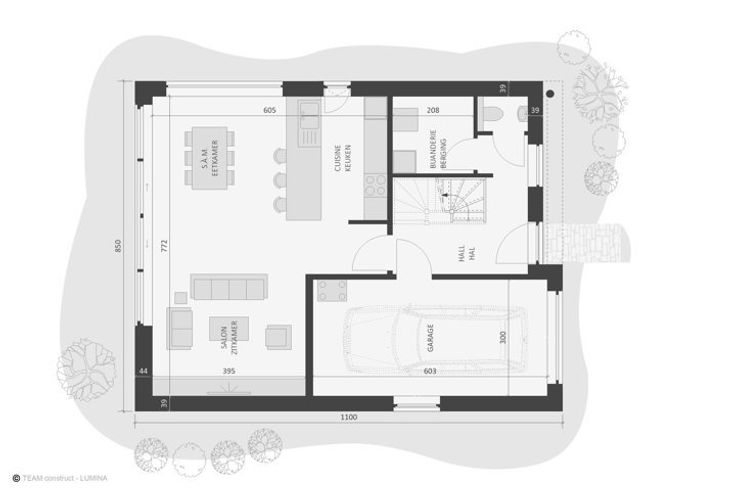
Découvrez ce projet de VILLA 4 FAÇADES PEB A+ - CONSTRUCTION 100% TRADITIONNELLE finition clé-sur-porte. Avec son architecture soignée et ses performances énergétiques exceptionnelles, ce projet vous offre un confort de vie optimal. Ce modèle de villa répond au dernière norme QZEN (quasi zéro énergie) : triple vitrage PVC, 13 panneaux solaires photovoltaïques, pompe à chaleur & chauffage par le sol, isolation performante, ventilation double avec récupérateur de chaleur. Implantée sur un terrain de 401 m², cette villa combine harmonieusement modernité et respect de l'environnement. Personnalisation de votre projet : grand choix de modèle, de matériaux sans supplément ou modifiez les plans selon vos envies pour que votre maison corresponde parfaitement à votre style de vie. Selon un cahier des charges complet. Prix total : 457.520€ inclus : fixe dans le contrat, la T.V.A., les honoraires de l'architecte, une estimation des frais de raccordement aux différents réseaux, les frais de notaire et d’enregistrement sur le terrain, le bilan énergétique, la réserve de fondation, l’étude de stabilité… Visitez notre maison témoin 7 jours sur 7 sur rendez-vous. Team Construct, c’est plus de 30 ans d’expérience ! Choisissez la tranquillité d’esprit et la qualité en optant pour un constructeur de confiance. Pour en savoir plus, contactez-nous au 02/556 47 56 ou visitez notre site web www.teamconstruct.be.
Type vastgoed Huis
Prijs 384.736
Bewoonbare opp. 185
Aantal slaapkamers 3
Aantal badkamers 2