Te koop Huis

Beschrijving van   

Vergelijk realty's

Te koop Huis

Huis Huis Huis Huis Huis Huis Huis Huis Huis Huis Huis Huis Huis Huis Huis Huis Huis Huis Huis Huis Huis Huis Huis Huis Huis Huis Huis Huis
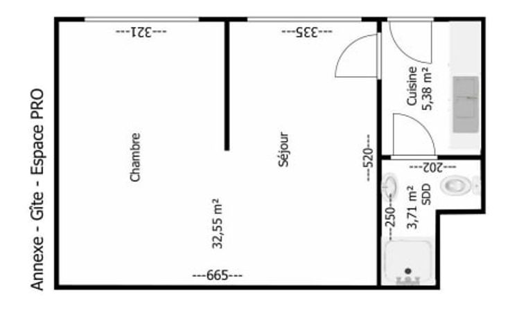
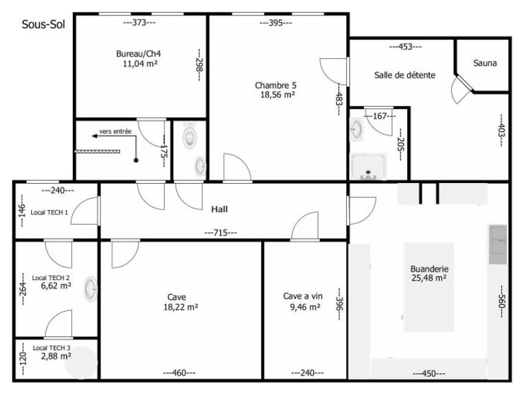
Dans une rue en cul de sac de l’agréable village de Les Hayons, immense villa récente, exploitable sur 416m². Au demi sous-sol : Hall, caves, buanderie, WC séparé, 2ch dont une avec sa SDD + sauna, pièces techniques et superbe cave à vin ! Rez de chaussée : une immense pièce à vivre de 68 m2 avec poêle de masse, cuisine équipée de 33 m2 très lumineuse, chambre ou salle de jeux, WC, SDD. 1er Étage : une grande mezzanine, 3 chambres de standing, 2 WC, SDD et SDB, dressing indépendant. 2ème Étage : Un vaste grenier aménagé avec toiture déjà isolée, surface idéale pour les amateurs(trices) de chaussures…. En annexe, un gîte (ou espace pro) de 42m2 avec cuisine, WC et SDD. Les extérieurs sont assortis et proposent une grande terrasse orientée ouest, une grande pelouse, un coin potager, un très grand parking, pièce d’eau, espace piscine prévu… Matériaux nobles mis en place : chauffage au sol, châssis triple vitrage, ardoise naturelle belge, pierre bleu belge, 3 pompes à chaleur géothermique, panneau photovoltaïques, poêle scandinave exceptionnel, niveaux en béton, boiseries au top, systèmes de ventilation, alarme ! Prix : F.O à partir de 750.000€ ( Achat direct à 799.000€ ) P.E.B : Classe B ,num 20221025014823, E totale : 90.460 kwh/an, E spécifiq : 146kwh/m²/an.
Type vastgoed Huis
Prijs 799.000
Bewoonbare opp. 416
Aantal slaapkamers 6
Aantal badkamers 5