Te huur Commerciële panden

Beschrijving van   

Vergelijk realty's

Te huur Commerciële panden

Commerciële panden Commerciële panden Commerciële panden Commerciële panden Commerciële panden Commerciële panden Commerciële panden Commerciële panden
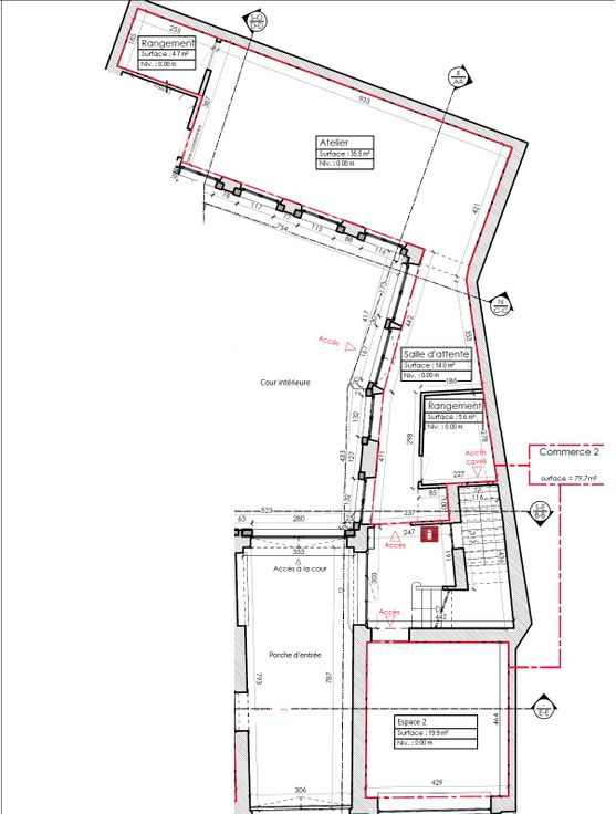
À louer, surface commerciale de ±120 m² au rez-de-chaussée d’un immeuble mixte situé Rue Saint-Remy 17/003 à 4000 Liège. Composé d’un espace à front de rue (±70 m²) avec vitrine, d’un atelier à l’arrière (±50 m²), WC indépendant, + cuisine et espace de stockage. ➡️ Chauffage / climatisation réversible dans l'atelier. ➡️ Idéal pour bureaux, atelier ou commerce (hors horeca). 💰 Loyer : 1.530 €/mois + 110 € charges 📃 Bail commercial 9 ans ou bail de droit commun. 📍 Proche du centre et des transports.
Type vastgoed Commercieel
Prijs 1.530