Te koop Bouwgrond

Beschrijving van   

Vergelijk realty's

Te koop Bouwgrond

Bouwgrond Bouwgrond Bouwgrond Bouwgrond Bouwgrond Bouwgrond Bouwgrond Bouwgrond Bouwgrond Bouwgrond Bouwgrond Bouwgrond
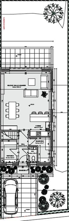
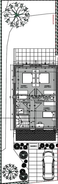
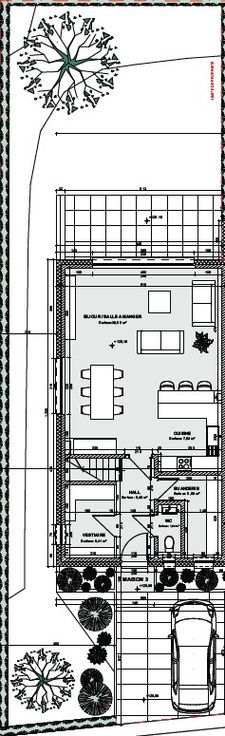
Dans une voie sans issue, terrain avec permis accordé pour habitation 3 façades 3 chambres avec parking et jardin à proximité des commerces, écoles et accès autoroutier. Lot 3 : 3 Fac 146m² bâti sur 2a56ca. Le rez se compose d’un hall d'entrée avec un vestiaire séparé, water closet et buanderie séparée. Il vous amène vers le lumineux living et sa cuisine ouverte vers la terrasse et le jardin. Au 1 étage un hall nuit donne accès à 3 chambres de 12.45-12.45-11.85m² et une salle de bain, douche et double vasque ainsi qu’une seconde toilette séparée. Lot 5 : 3 Fac 145m² bâti sur 2a38ca. Le rez se compose d’un hall d'entrée avec un vestiaire séparé, water closet et buanderie séparée. Il vous amène vers le lumineux living et sa cuisine ouverte vers la terrasse et le jardin. Au 1 étage un hall nuit donne accès à 3 chambres de 13.33-12-12m² et une salle de bain, douche et double vasque ainsi qu’une seconde toilette séparée. Les Impétrants sont présent à rue. Prix par Lot (Lot 4 en 2 façades disponible) Dossier complet sur demande (permis, plans, Peb, essai de sol etc...)
Type vastgoed Grond
Prijs 43.000