Te huur Appartement

Beschrijving van   

Vergelijk realty's

Te huur Appartement

Appartement Appartement Appartement Appartement Appartement Appartement Appartement Appartement Appartement Appartement Appartement Appartement Appartement Appartement Appartement Appartement Appartement
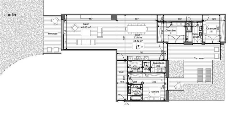
1ère occupation !!! UCCLE (Fort Jaco), dans une nouvelle construction, à proximité immédiate des commerces, des restaurants, du David Lloyd et de la forêt de Soignes, sublime rez-de-chaussée de 194m² + terrasse de 16,5m² + jardin de 287m², comprenant: hall d'entrée, wc invités, living, cuisine full équipée, hall de nuit, wc séparé, 3 chambres, salle de bain + wc, salle de douche, un espace buanderie, porte blindée, cave privative. Parking auto en option (130€/mois), parking moto en option (65€/mois) et local vélos. L'appartement est équipé de rails, luminaires dans certaines pièces. Libre directement. BAIL SOCIETE OK! Pour conditions et visites: 02 344 88 84 / rent@tribel-immo.be / www.tribel-immo.be (PEB: B)
Type vastgoed Appartement
Prijs 3.950
Bewoonbare opp. 194
Aantal slaapkamers 3
Aantal badkamers 1