Te koop Instapklare gezinswoning

Beschrijving van   

Vergelijk realty's

Te koop Instapklare gezinswoning

Instapklare gezinswoning Instapklare gezinswoning Instapklare gezinswoning Instapklare gezinswoning Instapklare gezinswoning Instapklare gezinswoning Instapklare gezinswoning Instapklare gezinswoning Instapklare gezinswoning Instapklare gezinswoning Instapklare gezinswoning Instapklare gezinswoning Instapklare gezinswoning Instapklare gezinswoning Instapklare gezinswoning Instapklare gezinswoning Instapklare gezinswoning Instapklare gezinswoning
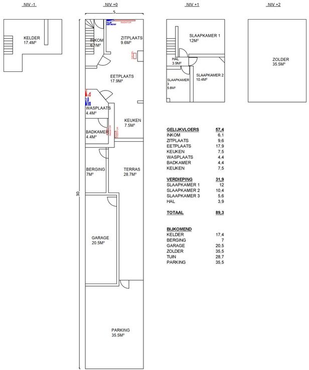
In het centrum van Muizen, vlakbij natuur, openbaar vervoer (station Muizen), Planckendael en op fietsafstand van Mechelen centrum, vind je deze recent gerenoveerde gezinswoning.

Via de inkomhal met trap, bereik je de lichtrijke, open leefruimte (met kachel). Deze sluit aan op de eetplaats en geïnstalleerde keuken met inductie kookvuur, vaatwas en alle moderne comfort. Vanuit de keuken op het gelijkvloers heb je toegang tot een zonnige stadstuin met een aparte wasruimte, en aansluitend een grote garage voor 1 wagen, meerdere fietsen en stockage van andere hobby materialen. Ook nog op het gelijkvloers vind je de badkamer met douche en 2 lavabo’s terug, met aansluitend toilet met lavabo en kastruimte voor het opbergen van stofzuiger, strijkplank en ander kuismateriaal. Op de eerste verdieping bevinden zich de 3 lichtrijke slaapkamers. Elke slaapkamer heeft tenminste 1 raam met geïnstalleerd vliegenraam.

De woning is voorzien van een droge kelder, nieuwe cv ketel (2022) op gas, een zolder met geïsoleerde vloer, nieuw raamwerk geplaatst in 2022 met hoogrendementsglas, volledig vernieuwde en conforme elektriciteit. Achter de garage zijn er eveneens 2 autostaanplaatsen. Je kan de woning dus zowel langs de straatkant als langs achter betreden, gemakkelijk voor de boodschappen.

Deze instapklare en praktische woning is rechtstreeks te koop via de eigenaar.
Type vastgoed Huis
Prijs 345.000
Aantal slaapkamers 3
Aantal badkamers 1