Te huur Kantoor in Lieven Bauwens Building Langsheen Gentse binnenri
Kantoorruimte beschikbaar op de 2de en 8ste verdieping gelegen in de Lieven Bauwens Building.
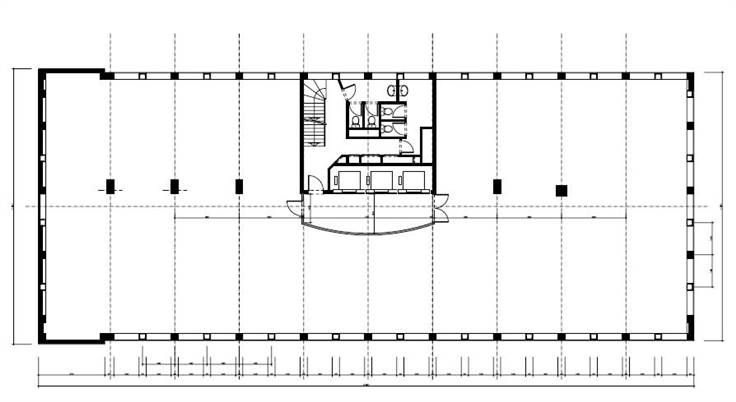
Ieder verdiep is 512m² en kan opgesplitst worden in twee.
De kantoorruimte zal volledig ontdaan worden van zijn huidige inrichting en biedt zo de mogelijkheid aan de huurder om het in te richten naar eigen wensen en behoeften.
Bereikbaar via de grote verkeersassen van de Stad Gent gezien de ligging aan de Gentse binnenring.
Het Sint-Pietersstation is gelegen in de nabije omgeving met voor het gebouw 2 haltes van De Lijn (Tram). EPC-NR: label 'E'