Te koop Zeer energiezuinige halfopen woning op top...

Beschrijving van   

Vergelijk realty's

Te koop Zeer energiezuinige halfopen woning op topligging

Zeer energiezuinige halfopen woning op topligging Zeer energiezuinige halfopen woning op topligging Zeer energiezuinige halfopen woning op topligging Zeer energiezuinige halfopen woning op topligging Zeer energiezuinige halfopen woning op topligging
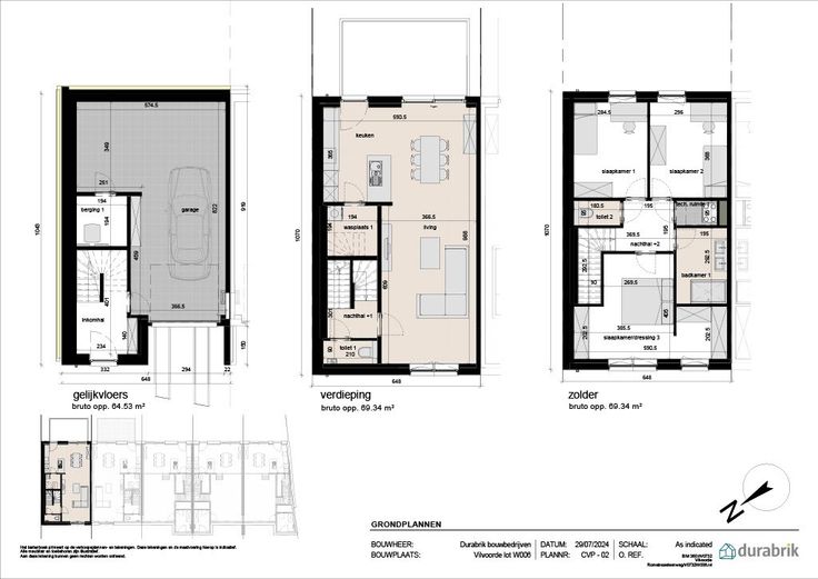
Deze halfopen bebouwing is uitstekend gelegen op een knooppunt van invalswegen en fietsautostrades naar onze hoofdstad. De woning heeft een modern uitzicht: een beige genuanceerde gevelsteen met donkergrijs buitenschrijnwerk en een plat dak vol zonnepanelen. Het perceel meet 187 m², de woonopp. bedraagt 203 m². Kelderverdieping met inkomhal en zeer grote garage met extra ruimte voor het plaatsen van meerdere fietsen. Er is ook een technische ruimte voorzien. Erboven op het gelijkvloers zien we de leefruimte met open keuken, de hal met trap en de wasplaats. De verdieping telt 3 slpks, een badkamer incl. douche en meubel met dubbele lavabo. Apart toilet. Alle ruimtes boven de kelderverdieping zijn voorzien van vloerverwarming. Deze wordt aangedreven door een ecologische warmtepomp en zonnepanelen waardoor we een negatief E-peil bereiken van maar liefst -10. Naast de woning is er een buitentrap die de tuin en de achterkant van de woning gemakkelijk bereikbaar maakt. De afwerking van de woning kan je bepalen onder professionele begeleiding van onze interieurvormgevers. De woning wordt instapklaar opgeleverd. De zuidoost gerichte tuin wordt afgeboord met draadafsluiting en een tuinpoort. Bij Durabrik ben je zeker van een vaste prijs. Voor meer info, contacteer onze bouwadviseur via 09 280 60 60 of mail naar info@durabrik.be. * Beelden en oppervlaktes zijn indicatief. Renovatieplicht: nee
Type vastgoed Huis
Prijs 594.000
Bewoonbare opp. 202
Aantal slaapkamers 3
Aantal badkamers 1