Te koop Energiezuinige, halfopen bebouwing met E-p...

Beschrijving van   

Vergelijk realty's

Te koop Energiezuinige, halfopen bebouwing met E-peil lager dan 0

Energiezuinige, halfopen bebouwing met E-peil lager dan 0 Energiezuinige, halfopen bebouwing met E-peil lager dan 0 Energiezuinige, halfopen bebouwing met E-peil lager dan 0 Energiezuinige, halfopen bebouwing met E-peil lager dan 0 Energiezuinige, halfopen bebouwing met E-peil lager dan 0 Energiezuinige, halfopen bebouwing met E-peil lager dan 0
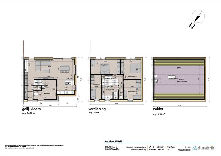
Op lot 3 wordt een energiezuinige HOB gebouwd in moderne architectuur op een grondopp. van 496m² en met een totale bewoonbare opp. van 164m² op de 1e en 2e verdieping. Ruime bergzolder van 52m². GLVS: inkom, gastentoilet, lichtrijke ruime leefruimte met, uitgeruste keuken (incl. oven, vaatwasmachine, keramische kookplaat, dampkap en koelkast). Trap naar 1e verdieping. Aparte ingang van de voorzijde naar zeer ruime fietsenberging/ wasplaats met aansluiting voor wasmachine en droogkast. De tuin heeft een ZW oriëntatie. 1ste VERDIEPING: 4 ruime slpks, aparte wc, badkamer ingericht met ligbad, inloopdouche en badkamermeubel met dubbele lavabo. 2de VERDIEPING: ruime zolderverdieping die veel opbergruimte biedt. De woning wordt VOLLEDIG AFGEWERKT aangeboden: met ingerichte keuken, badkamer (met douche, ligbad en dubbel lavabomeubel), 2 toiletten, deuren en vloeren. Bespaar fors op je energiefactuur dankzij volgende energietechnieken: vloerverwarming, warmtepomp lucht/ water, ventilatiesysteem D, regenwaterput 10000l, zonnepanelen. Dankzij het negatief E-peil bekom je betere voorwaarden voor je lening. Bij Durabrik ben je zeker van een vaste prijs. Geen budgettaire verrassingen dus tijdens je bouwtraject. Download de brochure via https://durabrik.immo/bierbeek // Heb je vragen? Contacteer dan je bouwadviseur via 09 280 60 60 of mail naar info@durabrik.be. * Beelden en oppervlaktes zijn indicatief. Renovatieplicht: nee
Type vastgoed Huis
Prijs 570.000
Bewoonbare opp. 164
Aantal slaapkamers 4
Aantal badkamers 1