Te koop Huis

Beschrijving van   

Vergelijk realty's

Te koop Huis

Huis Huis Huis Huis Huis Huis Huis Huis Huis Huis Huis Huis Huis Huis Huis Huis Huis Huis Huis Huis Huis Huis Huis Huis Huis
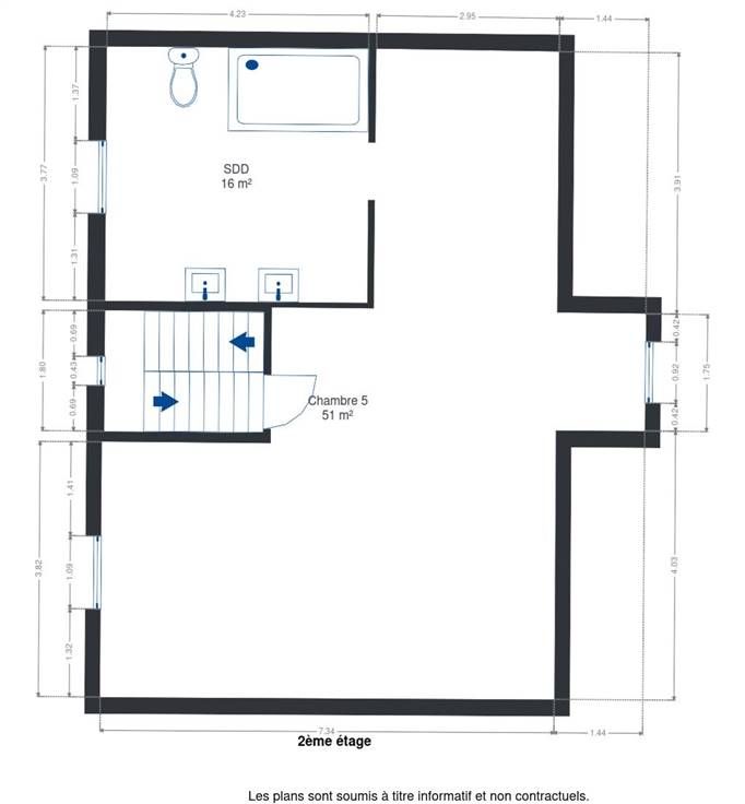
Dit prachtige landhuis, ideaal gelegen aan de oevers van de rustige rivier de Aisne, biedt een betoverende omgeving. Het is perfect om een kangoeroewoning of gîte van te maken en combineert charme, ruimte en functionaliteit. De vele open ruimtes en de nabijheid van de natuur maken het een uitzonderlijk huis met karakter. Een geweldige kans voor een familiehuis of toeristisch project! Neem contact met ons op voor een bezichtiging. Kelders: 3 kelders Begane grond: Entree, hal, eetkamer, ingerichte keuken, woonkamer, studeerkamer, toilet, bijkeuken, stookruimte, schuur, terras, tuin, garage, berging in bijgebouw. 1ste verdieping: nachthal, 4 slaapkamers, badkamer, kleedkamer, WC, mezzanine woonkamer boven de keuken 2e verdieping: slaapkamer met doucheruimte. Een geweldige kans voor een gezinswoning of toeristisch project! Neem contact met ons op voor een bezichtiging.
Type vastgoed Huis
Prijs 495.000
Bewoonbare opp. 338
Aantal slaapkamers 5
Aantal badkamers 1