Te koop Huis

Beschrijving van   

Vergelijk realty's

Te koop Huis

Huis Huis Huis Huis Huis Huis Huis Huis Huis Huis Huis Huis Huis Huis Huis Huis Huis Huis Huis Huis Huis Huis
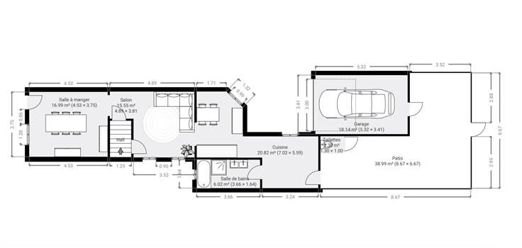
Sorry er is geen nederlandse vertaling beschikbaar. Century 21 iris-concept vous propose une maison récemment rénovée à vendre à Thiméon. Au rez-de-chaussée vous disposez d'un espace salle à manger, un salon donnant sur une cuisine équipée, un wc, une belle salle de bain, véranda, garage. A l'étage vous trouverez une grande chambre parentale ainsi qu'une deuxième chambre, grenier aménageable, châssis en pvc double vitrage, véranda, terrasse + jardin. Faire offre à partir de 265 000€ (sous réserve d'acceptation du propriétaire) Infos et visites au 071/96.03.67 ou sur info@century21iris-concept.be
Type vastgoed Huis
Prijs 265.000
Bewoonbare opp. 120
Aantal slaapkamers 2
Aantal badkamers 1