Te koop Duplex

Beschrijving van   

Vergelijk realty's

Te koop Duplex

Duplex Duplex Duplex Duplex Duplex Duplex Duplex Duplex Duplex Duplex Duplex Duplex Duplex Duplex Duplex Duplex Duplex
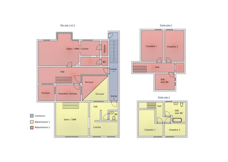
Cet élégant duplex (en rose sur le plan en annexe) vous séduira par sa luminosité et ses beaux volumes. Situation idéale à quelques minutes du centre d'Andenne, à proximité de nombreux commerces et écoles, et à quelques pas du bord de Meuse. Il se compose en bas d'un espace living/salon, d'une sympathique cuisine équipée, d'une chambre, d'un WC et de 2 terrasses. A l'étage, 2 autres chambres, une salle d'eau avec bain, douche et WC. Atout supplémentaire, le duplex est vendu avec un garage (box fermé). Chaudière individuelle au gaz. Bon à savoir : le duplex voisin (2 chambres, en jaune sur le plan) est également en vente ! La visite virtuelle vous a séduit ? Alors ne tardez pas à prendre rdv par tél au 0488 00 47 37 pour une visite sur place.
Type vastgoed Appartement
Prijs 210.000
Aantal slaapkamers 3
Aantal badkamers 1