Te koop Duplex

Beschrijving van   

Vergelijk realty's

Te koop Duplex

Duplex Duplex Duplex Duplex Duplex Duplex Duplex Duplex Duplex Duplex Duplex Duplex
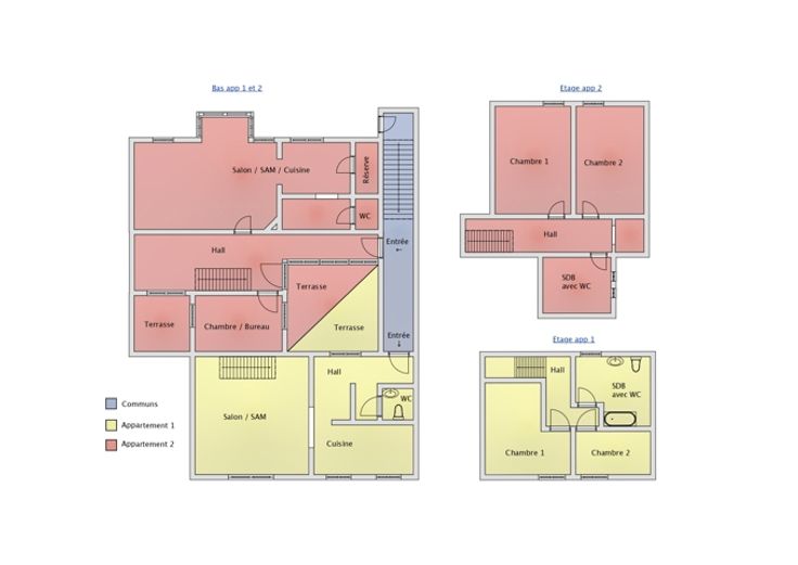
Charmant duplex (en jaune sur le plan en annexe) idéalement situé à quelques minutes du centre d'Andenne, à proximité de nombreux commerces et écoles, et à quelques pas du bord de Meuse. Il se compose au niveau inférieur d'un hall d'entrée donnant sur la terrasse intérieure, d'une belle et grande pièce de vie de plus de 30 m2, d'une cuisine équipée et d'un WC. Le niveau supérieur vous propose un hall de nuit, 2 chambres, une salle de bain avec WC. Atout supplémentaire, le duplex est vendu avec un emplacement de parking extérieur. Chaudière individuelle au gaz. Bon à savoir : le duplex voisin (3 chambres, en rose sur le plan) est également en vente ! La visite virtuelle vous a séduit ? Alors ne tardez pas à prendre rdv par tél au 0488 00 47 37 pour une visite sur place.
Type vastgoed Appartement
Prijs 170.000
Aantal slaapkamers 2
Aantal badkamers 1