Te koop Nieuwbouw handelspand

Beschrijving van   

Vergelijk realty's

Te koop Nieuwbouw handelspand

Nieuwbouw handelspand Nieuwbouw handelspand Nieuwbouw handelspand
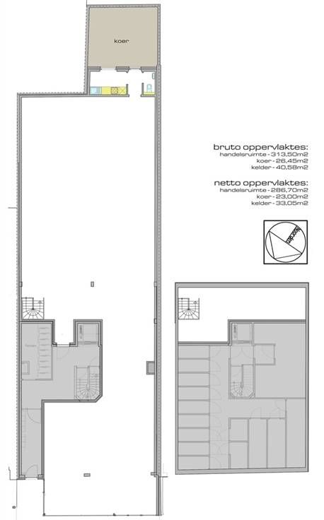
Op zoek naar een slimme investering of de ideale locatie voor uw zaak aan de kust? Ontdek deze gelijkvloerse casco handels- of kantoorruimte in Residentie Il Giardino, een nieuwbouwproject in het centrum van Koksijde op wandelafstand van zee en strand. Deze commerciële ruimte biedt een ruime gelijkvloerse oppervlakte met grote raampartijen en veel lichtinval, een private kelder bereikbaar vanuit de handelsruimte, ruimte voor sanitair en een keukenhoek, en een zonnige koer die dienst kan doen als rustplek of praktische buitenruimte. Alle handelsactiviteiten zijn toegelaten, behalve horeca. Hierdoor is de ruimte geschikt voor zowel winkels als kantoren. Dankzij de topligging in het winkelcentrum van Koksijde geniet u van maximale zichtbaarheid en passage. De directe buren zijn onder meer Tommy Hilfiger en Penel Light & Deco, wat bijdraagt aan de professionele uitstraling van de locatie. Een unieke kans voor ondernemers, zelfstandigen of investeerders die op zoek zijn naar een eigentijdse en strategisch gelegen ruimte aan de Belgische kust. Interesse? Neem contact op met Immo Pinson en plan een bezoek. Deze ruimte is zeldzaam, wees er snel bij.
Type vastgoed Commercieel
Prijs 749.000