Te koop Huis

Beschrijving van   

Vergelijk realty's

Te koop Huis

Huis Huis Huis Huis Huis Huis Huis Huis Huis Huis Huis Huis Huis Huis Huis Huis Huis Huis Huis Huis Huis Huis Huis Huis Huis Huis Huis Huis
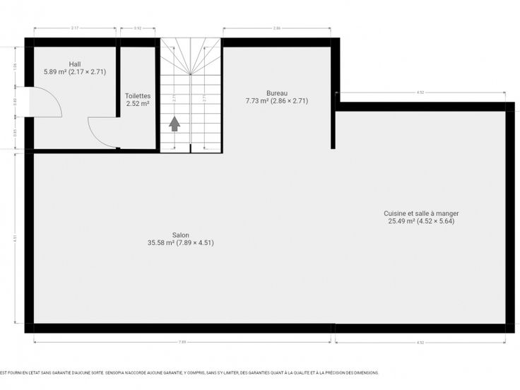
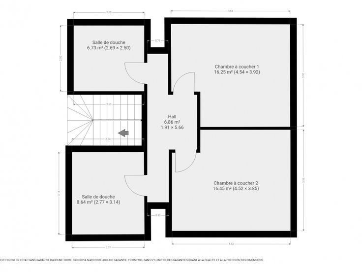
Dans le magnifique village d'Orbais, authentique maison de 1828 entièrement rénovée en 2024-25. Elle allie charme et élégance et développe des volumes extrêmement spacieux et lumineux. A découvrir absolument de l'intérieur. Elle comprend au rez un hall d'entrée, grd séjour, spacieuse cuis. hyper équipée avec coin manger et gdes baies vitrées ouvertes sur le jardin, bureau et coin buanderie. 1er étage : 2 ch et 2 SDD. 2éme étage 1 grde ch avec SDB. Le bâtiment est livré avec terrasse et jardin réalisés. Poss. d'acquérir une parcelle de 33 ares en +. Cadre bucolique. Environnement calme. Libre à l'acte Prix. FO àpd 575.000 euros. ss reserve accept propr.
Type vastgoed Huis
Prijs 575.000
Bewoonbare opp. 200
Aantal slaapkamers 3
Aantal badkamers 1