Te koop Groot perceel bouwgrond voor een open woning

Beschrijving van   

Vergelijk realty's

Te koop Groot perceel bouwgrond voor een open woning

Groot perceel bouwgrond voor een open woning Groot perceel bouwgrond voor een open woning Groot perceel bouwgrond voor een open woning Groot perceel bouwgrond voor een open woning Groot perceel bouwgrond voor een open woning
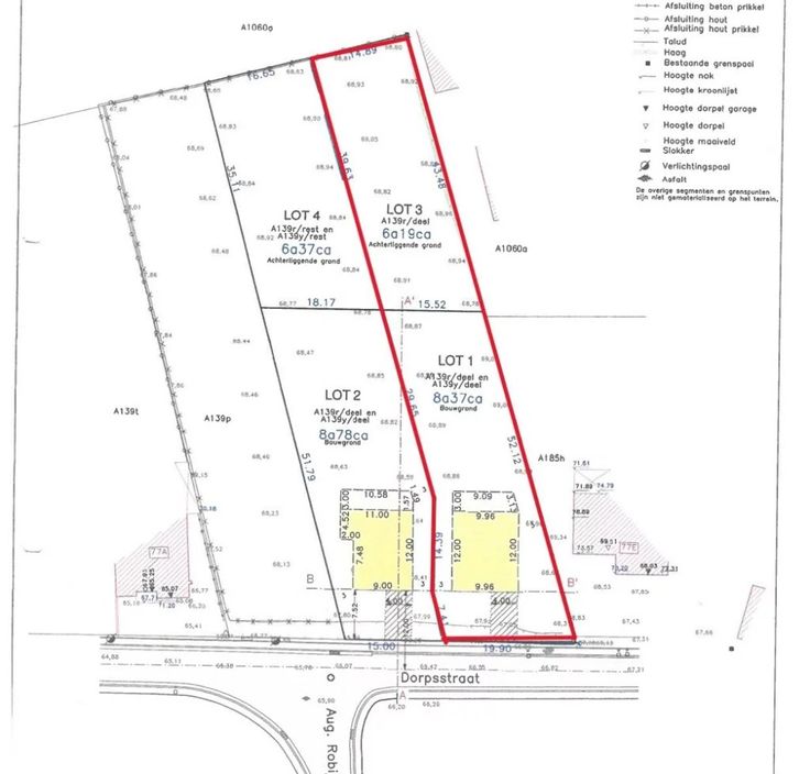
Dit ruim perceel bouwgrond ligt in het rustige Landen en is geschikt voor het bouwen van een open woning. Er is ook een grote tuin voorzien. De ligging is ook ideaal, het station van Landen ligt op een rijafstand van 5 minuten, alsook alle accomodaties die het centrum van Landen te bieden heeft. verder ligt de oprit van de E40 op slechts 9 minuten rijafstand. Hebt u interesse, mail dan naar ben@immovesta.be of bel naar 011747080.
Type vastgoed Grond
Prijs 127.500