Te koop Grond

Beschrijving van   

Vergelijk realty's

Te koop Grond

Grond Grond Grond Grond Grond Grond Grond Grond
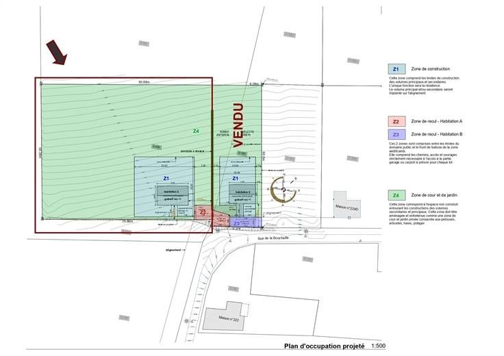
Sorry er is geen nederlandse vertaling beschikbaar. GESVES - OHEY : Superbe terrain à bâtir de ± 40 ares (lot A), idéalement situé à La Bouchaille. Nichée au cœur de la province de Namur, la commune d'Ohey se distingue par son dynamisme et sa proximité avec Ciney, Andenne, Huy et Havelange (± 10 km). Vous y trouverez de nombreux commerces et commodités, ainsi qu'un accès facile aux autoroutes E411 et E42 (± 15 km). Ce terrain séduira les amateurs de tranquillité et de grands espaces, offrant une vue imprenable sur la campagne environnante tout en restant proche de toutes les facilités. Selon le CU2 obtenu, il permet la construction d’une habitation 4 façades, avec une orientation idéale : façade avant au sud-est et jardin au sud-ouest. Ne manquez pas cette opportunité unique ! Faire offre à partir de 190.000 € (sous réserve d’acceptation du propriétaire).
Type vastgoed Grond
Prijs 190.000