Te koop PERCEEL BOUWGROND

Beschrijving van   

Vergelijk realty's

Te koop PERCEEL BOUWGROND

PERCEEL BOUWGROND
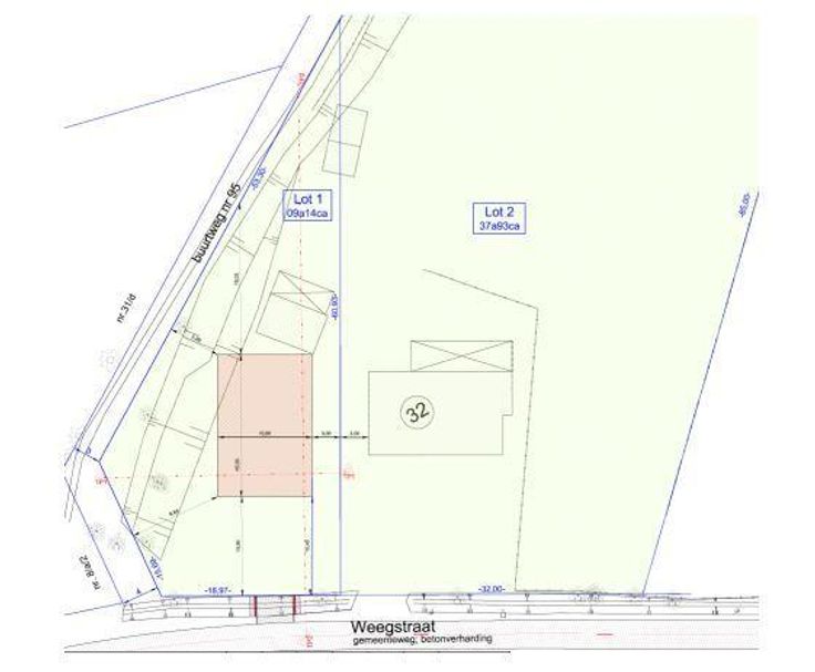
Perceel bouwgrond van 9a 6ca met verkavelingsvergunning in de Weegstraat (naast huisnr. 32 aan de rechterkant vanaf de straat gekeken), sectie C deel 34D P0000: LOT 1 plan. Bent u op zoek naar de ideale locatie voor uw droomwoning? Dit ruime perceel bouwgrond, gelegen aan de Weegstraat, biedt de perfecte gelegenheid om uw eigen huis te realiseren. Eigenschappen: Oppervlakte: 9a 6ca. Type bebouwing: Open bebouwing. Verkavelingsvergunning: Aanwezig. Beschrijving: Dit schitterende perceel biedt u de mogelijkheid om een open bebouwing te realiseren in een rustige en groene omgeving. Met een oppervlakte van 9a 6ca heeft u voldoende ruimte om uw wensen waar te maken en uw droomwoning te creëren. Locatie: Gelegen in de Weegstraat, geniet u van de en rustige woonomgeving, terwijl u toch dicht bij alle nodige voorzieningen bent. Scholen, winkels en openbaar vervoer liggen op korte afstand, wat deze locatie extra aantrekkelijk maakt voor gezinnen en iedereen die op zoek is naar comfort en bereikbaarheid. P score: A
Type vastgoed Grond
Prijs 160.000