Te koop Huis

Beschrijving van   

Vergelijk realty's

Te koop Huis

Huis Huis Huis Huis Huis Huis Huis Huis Huis Huis Huis Huis Huis Huis Huis Huis
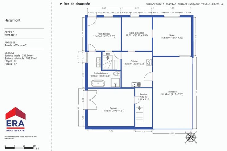
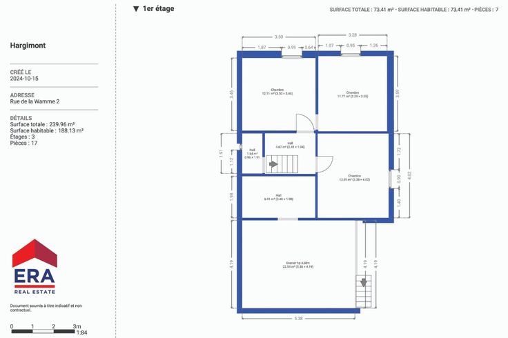
ERA B-LUX a le plaisir de vous présenter cette magnifique maison en pierre 4 façades située dans le charmant village de Hargimont, à seulement 10 minutes du centre-ville de Marche-en-Famenne et de toutes ses commodités. Cette maison de 3 chambres avec sa belle cuisine ouverte sur la salle à manger allie tranquillité et confort avec un extérieur idéalement orienté Sud - Ouest comprenant une terrasse couverte et son magnifique jardin entièrement cloturé. Vous profiterez du cadre paisible avec peu de passage dans une rue calme mais en étant proche de toutes les commodités (pharmacie, boulangerie,boucherie, coiffeur…) de Marloie, ainsi des transports en commun (gare des trains, bus). Intéressé ? N'hésitez pas à contacter votre agence ERA B-LUX au 086/311.888.
Type vastgoed Huis
Prijs 280.000
Bewoonbare opp. 188
Aantal slaapkamers 3
Aantal badkamers 1