Te koop Nieuwbouw kantoor te koop in duurzaam proj...

Beschrijving van   

Vergelijk realty's

Te koop Nieuwbouw kantoor te koop in duurzaam project Twin Offices

Nieuwbouw kantoor te koop in duurzaam project Twin Offices Nieuwbouw kantoor te koop in duurzaam project Twin Offices Nieuwbouw kantoor te koop in duurzaam project Twin Offices Nieuwbouw kantoor te koop in duurzaam project Twin Offices Nieuwbouw kantoor te koop in duurzaam project Twin Offices Nieuwbouw kantoor te koop in duurzaam project Twin Offices Nieuwbouw kantoor te koop in duurzaam project Twin Offices Nieuwbouw kantoor te koop in duurzaam project Twin Offices Nieuwbouw kantoor te koop in duurzaam project Twin Offices
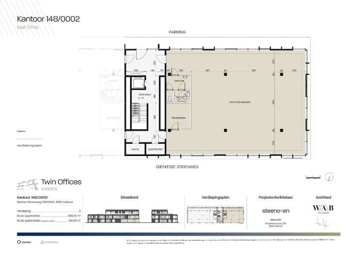
348,61m² landschapskantoor op de eerste verdieping van nieuwbouwproject Twin Offices Ligging: commercieel gelegen langs N70 (Gent - Sint-Niklaas), met vlotte verbinding naar E17 (op 6,6km) en met bushalte aan de site De kantoorruimte wordt casco+ opgeleverd wat inhoudt dat ze water- en winddicht is en zal voorzien zijn van een verhoogde computervloer met vloercontactdozen, klimatisatieplafond (koelen en verwarmen) met inbouw led-verlichting (500 lux), mechanische ventilatie, privatief sanitair (H/D) en een videofoon. De gemeenschappelijke delen worden volledig afgewerkt en voorzien van een lift (8 personen), een brandmeldinstallatie en inbraakalarm. Met maar liefst 6 autostaanplaatsen en twee aparte fietsenstallingen zijn zowel klanten als medewerkers altijd verzekerd van een vlotte aankomst. Vanuit elk kantoor kijk je uit op een prachtig aangelegde tuin met uitnodigend zitmeubilair. Er is mogelijkheid tot een LED-logo op de gevel en een vermelding op de grote publiciteitstotem. Wens je meer informatie of wil je een bezoek inplannen? Contacteer Arne 09/243 41 85
Type vastgoed Commercieel
Prijs 958.678
Bewoonbare opp. 349