Te koop Huis

Beschrijving van   

Vergelijk realty's

Te koop Huis

Huis Huis Huis Huis Huis Huis Huis Huis Huis Huis Huis Huis Huis Huis Huis Huis Huis Huis Huis Huis Huis Huis Huis Huis Huis Huis Huis
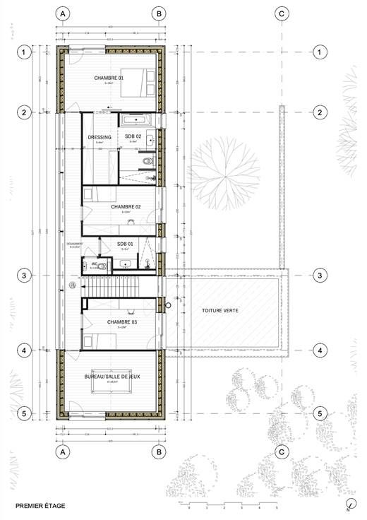
Sorry er is geen nederlandse vertaling beschikbaar. Un descriptif très complet avec documents téléchargeables est visible sur www.pierremarlair.be. Visite sur RDV uniquement en appelant le 081.840.840 Située à Andenne (Coutisse), dans un environnement rural paisible et verdoyant, cette superbe villa neuve 4 façades en construction incarne l’équilibre parfait entre confort moderne, espace et sérénité. Édifiée sur un vaste terrain de plus de 28 ares, elle séduit dès l’arrivée par son architecture contemporaine, alliant lignes épurées, toiture végétalisée et matériaux de qualité. Avec près de 200 m² habitables, cette construction neuve offre de généreux volumes baignés de lumière, notamment grâce à une belle orientation sud-est en façade avant. Le rez-de-chaussée accueille une vaste pièce de vie de 75 m² combinant cuisine, salle à manger et salon avec accès direct à une grande terrasse orientée est, idéale pour les moments en famille ou entre amis. On y trouve également un hall d’entrée, un WC indépendant, une buanderie, un local technique ainsi qu’un garage intégré. À l’étage, l’espace nuit se compose de quatre chambres dont une suite parentale avec salle de bains privative, complété par une seconde salle de bains et un hall de nuit. Côté technique, le confort est au rendez-vous : PEB B, chauffage par le sol via pompe à chaleur, ventilation double flux, châssis aluminium double vitrage haut rendement, microstation d’épuration et finitions soignées. La terrass
Type vastgoed Huis
Prijs 815.000
Bewoonbare opp. 200
Aantal slaapkamers 4
Aantal badkamers 2