Te koop Huis - Vrij beroep

Beschrijving van   

Vergelijk realty's

Te koop Huis - Vrij beroep

Huis - Vrij beroep Huis - Vrij beroep Huis - Vrij beroep Huis - Vrij beroep Huis - Vrij beroep Huis - Vrij beroep Huis - Vrij beroep Huis - Vrij beroep Huis - Vrij beroep Huis - Vrij beroep Huis - Vrij beroep Huis - Vrij beroep Huis - Vrij beroep Huis - Vrij beroep Huis - Vrij beroep Huis - Vrij beroep Huis - Vrij beroep Huis - Vrij beroep Huis - Vrij beroep Huis - Vrij beroep Huis - Vrij beroep
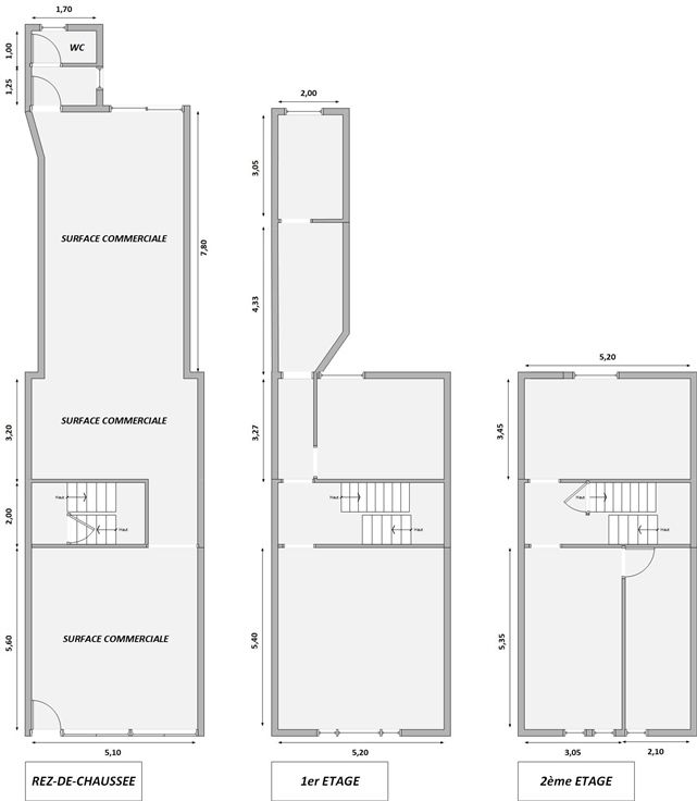
Commercieel pand ideaal gelegen in het centrum van Andenne, in de winkelstraat, binnen handbereik van alle voorzieningen (openbaar vervoer, scholen, hoofdwegen, enz.). De begane grond bestaat uit een onlangs gerenoveerde commerciële ruimte van ongeveer 90 m². Op de bovenverdiepingen zijn er tal van kamers die kunnen worden verbouwd tot woonruimte, verdeeld over drie niveaus. Kelders, een grote zolder die verbouwd kan worden en een klein huisje aan de achterkant van het gebouw maken de beschrijving van dit pand met zijn vele mogelijkheden compleet. Uitrusting: centrale verwarming op stadsgas + omkeerbare airconditioning. Ramen: PVC DV (commercieel) + SV hout. Kunstleien dak (te isoleren - raamwerk in goede staat). Doe een bod vanaf ................ onder voorbehoud van aanvaarding door de eigenaars.
Type vastgoed Commercieel
Prijs 269.000
Bewoonbare opp. 215