Te huur Handelspand met veel visibiliteit

Beschrijving van   

Vergelijk realty's

Te huur Handelspand met veel visibiliteit

Handelspand met veel visibiliteit Handelspand met veel visibiliteit Handelspand met veel visibiliteit Handelspand met veel visibiliteit Handelspand met veel visibiliteit Handelspand met veel visibiliteit Handelspand met veel visibiliteit
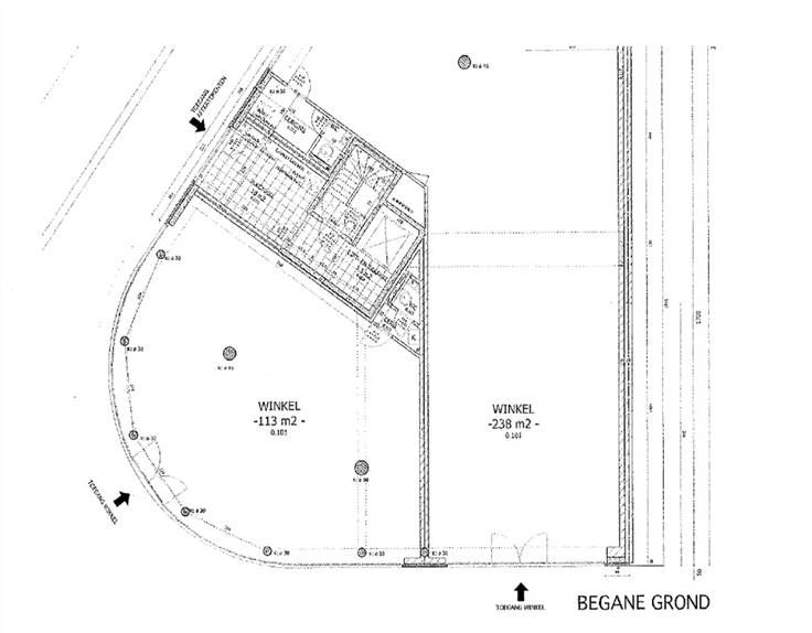
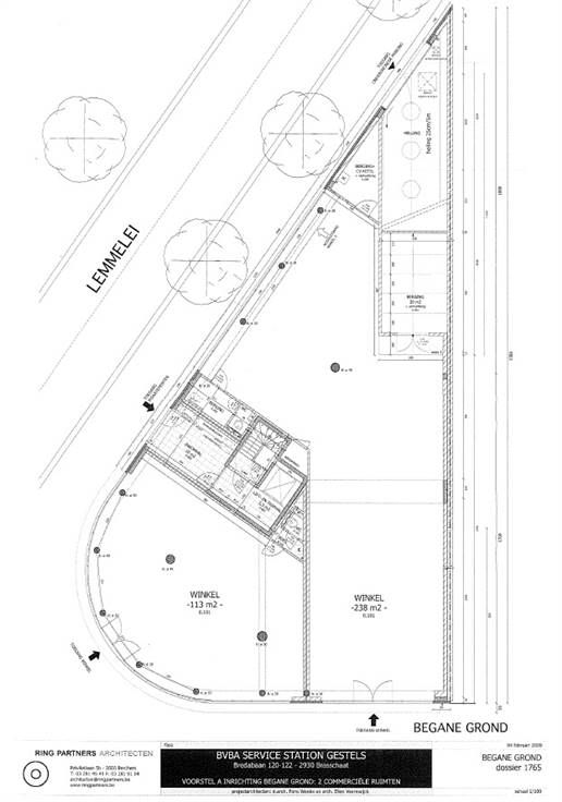
Uitstekend gelegen handelsruimte van 351m² te huur gelegen in de winkelstraat van Brasschaat: Bredabaan 120. Enseignes in de directe omgeving: 2 Soeurs, Mirlo, Zebra Fashion, Prinsen & Prinsessen, KBC Bank, Lucy Chang, Mitjes Place, enz. EPC-NR: label 'C'
Type vastgoed Commercieel
Prijs 5.950
Bewoonbare opp. 351