Te koop Bouwgrond met mogelijkheid tot 2 units

Beschrijving van   

Vergelijk realty's

Te koop Bouwgrond met mogelijkheid tot 2 units

Bouwgrond met mogelijkheid tot 2 units Bouwgrond met mogelijkheid tot 2 units Bouwgrond met mogelijkheid tot 2 units Bouwgrond met mogelijkheid tot 2 units Bouwgrond met mogelijkheid tot 2 units Bouwgrond met mogelijkheid tot 2 units
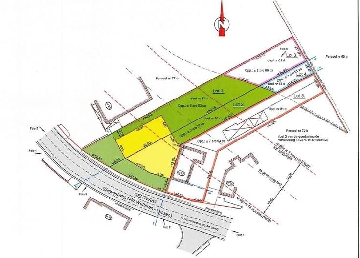
Deze goed gelegen projectgrond van 9a 79ca bevindt zich langs de Gentweg in Herzele, met uitstekende bereikbaarheid en nabijheid van belangrijke voorzieningen. Het perceel biedt de mogelijkheid voor de bouw van twee woonentiteiten, ideaal voor een woonproject of een gezinswoning met aparte wooneenheden. Een uitstekende investering voor een veelzijdige ontwikkeling! Neem contact met ons op voor meer info. .
Type vastgoed Grond
Prijs 139.000