Te koop Appartement

Beschrijving van   

Vergelijk realty's

Te koop Appartement

Appartement Appartement Appartement Appartement Appartement Appartement Appartement Appartement Appartement
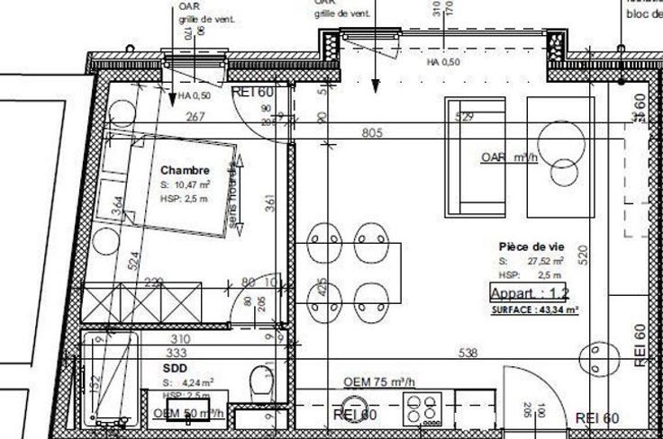
Idéal pour investisseur - Bel appartement neuf de 52 m² situé au 1er étage comprenant 1 chambre, un agréable et lumineux séjour, une cuisine entièrement équipée, une salle de douche, un WC séparé. Cet appartement dispose de tout le confort moderne: pompe à chaleur, isolation performante, double vitrage super isolant, ventilation simple flux. Accès aisé aux grands axes et à proximité de toutes les commodités, notamment à proximité immédiate de l'Université de Liège. Vente sous régime de la TVA 6 % (voir conditions). Emplacement de parking obligatoire (emplacement intérieur: 25.000€ OU box fermé intérieur: 35.000€). Cahier des charges et infos disponibles sur simple demande à l'agence au 04/336.35.82 ou sur notre site www.treviliege.be rubrique projets neufs. Informations données à titre indicatives et non contractuelles. Cette annonce ne constitue pas une offre.
Type vastgoed Appartement
Prijs 210.000
Bewoonbare opp. 54
Aantal slaapkamers 1