Te koop Ruim gelijkvloers handelspand met berging, vrij bij akte!
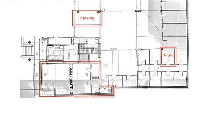
Dit handelspand op het gelijkvloers van de residentie Green Avenue (bouwjaar 2002) biedt een uitstekende commerciële opportuniteit op een centrale locatie in Zaventem, op wandelafstand van het "Park van Zaventem", Brussels Airport, autostrades E40/E19, Ring van Brussel... Met een netto bewoonbare oppervlakte van 72 m², inclusief een berging, is deze ruimte geschikt voor diverse professionele activiteiten, met uitzondering van horeca en voedingsgerelateerde zaken. Het pand is vrij van gebruik bij akte, waardoor het onmiddellijk in gebruik kan worden genomen of naar eigen behoefte ingericht kan worden. Dankzij de zuidelijke oriëntatie geniet de ruimte de hele dag door van natuurlijk licht, wat zorgt voor een aangename werkomgeving. De dubbele aluminium beglazing biedt een uitstekende isolatie, terwijl de elektrische verwarming instaat voor een efficiënte warmtevoorziening. Daarnaast is er de mogelijkheid om een binnenstaanplaats aan te kopen voor €25.000, wat een meerwaarde biedt in deze centrale ligging. De vlotte bereikbaarheid maken dit pand bijzonder geschikt voor ondernemers die op zoek zijn naar een representatieve en functionele werkruimte. Aarzel niet om Frederik te contacteren voor meer informatie of een eerste vrijblijvende bezoek: frederik@immo-time.be / +32 498 476 221.