Te koop Prachtig handelshuis op de Grote Markt in ...

Beschrijving van   

Vergelijk realty's

Te koop Prachtig handelshuis op de Grote Markt in Dendermonde!

Prachtig handelshuis op de Grote Markt in Dendermonde! Prachtig handelshuis op de Grote Markt in Dendermonde! Prachtig handelshuis op de Grote Markt in Dendermonde! Prachtig handelshuis op de Grote Markt in Dendermonde! Prachtig handelshuis op de Grote Markt in Dendermonde! Prachtig handelshuis op de Grote Markt in Dendermonde! Prachtig handelshuis op de Grote Markt in Dendermonde! Prachtig handelshuis op de Grote Markt in Dendermonde! Prachtig handelshuis op de Grote Markt in Dendermonde! Prachtig handelshuis op de Grote Markt in Dendermonde! Prachtig handelshuis op de Grote Markt in Dendermonde!
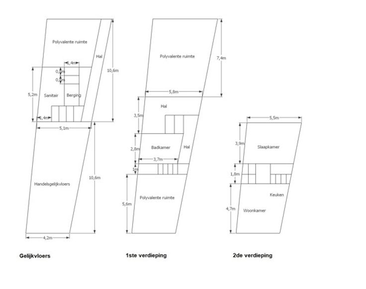
Bent u op zoek naar een unieke investering in het hart van Dendermonde? Dit charmante handelshuis, gelegen op de Grote Markt, biedt een geweldige kans voor ondernemers en investeerders. Het gebouw is een prachtig staaltje van bouwkundig erfgoed in herenhuisstijl, met een terras aan zowel de voor- als achterzijde. Momenteel wordt de horecazaak op het gelijkvloers succesvol uitgebaat, wat een directe inkomstenbron biedt.  Kenmerken van dit pand: Centraal gelegen: Op de Grote Markt, met veel voetgangersverkeer en een grote zichtbaarheid, ideaal voor een horecazaak of andere commerciële doeleinden Stijl: Herenhuis, bouwkundig erfgoed met authentieke details en hoge plafonds Terras: Voor- en achteraan, perfect voor klanten om te genieten van de omgeving (aan de achterzijde heeft men een prachtig uitzicht op de Dender) Toestand: Het pand is op te knappen en onderworpen aan een renovatieplicht, wat een geweldige kans biedt om waarde toe te voegen en het pand aan uw eigen stijl en eisen aan te passen Dit handelshuis is niet alleen een investering in vastgoed, maar ook in de rijke geschiedenis en het erfgoed van Dendermonde. Laat deze unieke kans niet aan u voorbijgaan! Interesse in een bezichtiging of meer informatie? Neem contact op met Tijl via tijl@immotijl.be of 0477 44 86 11.
Type vastgoed Huis
Prijs 645.000
Bewoonbare opp. 256
Aantal slaapkamers 4
Aantal badkamers 3