Te koop Huis

Beschrijving van   

Vergelijk realty's

Te koop Huis

Huis Huis Huis Huis Huis
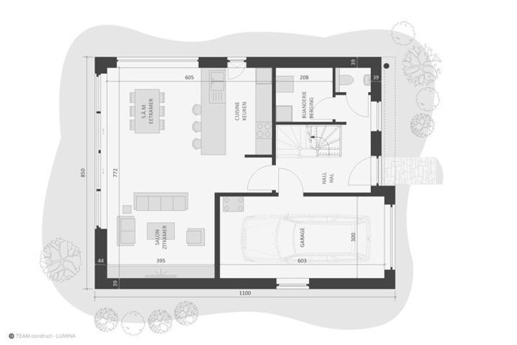
Projet de villa 4 FACADES PEB A+ (triple vitrage, panneaux solaires photovoltaïques, pompe à chaleur, chauffage sol, ventilation double flux avec récupérateur de chaleur...) sur un terrain de 578m². Nombreuses possibilités de personnaliser ou de modifier le projet (changement de modèle de maison possible). Grand choix de matériaux sans supplément. Finition clé sur porte en construction 100% traditionnelle avec cahier des charges très complet. Maison témoin à visiter 7 jours sur 7 sur rdv. Prix hors frais. Vente sous régime T.VA. et droit d'enregistrement. Prix total: 451.923€ (prix fixe dans le contrat) (Comprenant: la T.V.A., les honoraires de l' architecte, une estimation de frais de raccordement, les frais de notaire et d'enregistrement sur le terrain, le bilan énergétique, une réserve de fondation, le coordinateur de sécurité, le sondage du terrain, l'étude de stabilité, le PEB, ...) Plus d'information www.teamconstruct.be ou 02/556.47.56
Type vastgoed Huis
Prijs 380.556
Bewoonbare opp. 184
Aantal slaapkamers 3
Aantal badkamers 2