Te huur Magazijnunit L 544m² - glazen hoekgevel - ...

Beschrijving van   

Vergelijk realty's

Te huur Magazijnunit L 544m² - glazen hoekgevel - Heidelo-Park

Magazijnunit L 544m² - glazen hoekgevel - Heidelo-Park Magazijnunit L 544m² - glazen hoekgevel - Heidelo-Park Magazijnunit L 544m² - glazen hoekgevel - Heidelo-Park
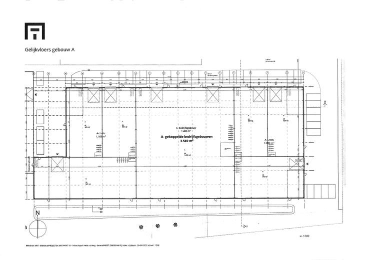
Unit L: Uniek magazijn 544m² met glazen hoekgevel in Heidelo-Park Ontdek Unit L, een modern magazijn van 544m² met een opvallende glazen hoekgevel, perfect voor bedrijven die op zoek zijn naar een lichte en representatieve ruimte. Deze unit biedt: * Ruime sectionaalpoort * Glazen hoekgevel voor maximale lichtinval * Casco oplevering * Gelegen in een groeiend bedrijvenpark met moderne voorzieningen * Parkeerplaatsen beschikbaar * Strategische ligging met vlotte verbinding naar de E313 Kenmerken: * Staalconstructie met isolatiepanelen * Gladde, gepolijste betonnen vloer * Directe nabijheid van de E313-oprit Interesse in Unit L? Neem contact op met DGI.immo voor een bezichtiging en alle details.
Type vastgoed Commercieel
Prijs 2.720
Bewoonbare opp. 544