Te koop Huis

Beschrijving van   

Vergelijk realty's

Te koop Huis

Huis Huis Huis Huis Huis Huis Huis Huis Huis Huis Huis Huis Huis Huis Huis Huis Huis Huis Huis Huis Huis Huis Huis Huis Huis Huis Huis Huis Huis
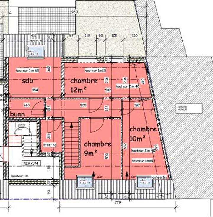
Ontdek deze prachtige duplex in Mons/Flénu, gepresenteerd door Revimmo Mons. Gelegen in een rustige omgeving nabij alle voorzieningen, combineert deze duplex comfort en toegankelijkheid harmonieus. Op de begane grond vindt u een entreehal, een individueel toilet, een ruime en lichte woonkamer met toegang tot een aangenaam terras, een volledig uitgeruste keuken en een opbergruimte. De bovenverdieping heeft een nachthal die leidt naar drie slaapkamers, een individueel toilet, een moderne doucheruimte en een wasruimte. De duplex is voorzien van verschillende hoogwaardige technische elementen zoals een PEB van klasse A, conforme elektriciteit, PVC ramen met dubbele beglazing, een airconditioning en centrale verwarming op gas met individuele ketel. Een privéparkeerplaats en een lokale ruimte voor vuilnisbakken en technische uitrusting maken deze eigendom compleet. De commissie is voor rekening van de koper. Voor meer informatie over dit pand, aarzel niet om contact op te nemen met Revimmo Mons.
Type vastgoed Huis
Prijs 219.000
Bewoonbare opp. 167
Aantal slaapkamers 3
Aantal badkamers 1