Te koop Nieuw te bouwen halfopen bebouwing te Affl...

Beschrijving van   

Vergelijk realty's

Te koop Nieuw te bouwen halfopen bebouwing te Affligem

Nieuw te bouwen halfopen bebouwing te Affligem Nieuw te bouwen halfopen bebouwing te Affligem Nieuw te bouwen halfopen bebouwing te Affligem Nieuw te bouwen halfopen bebouwing te Affligem
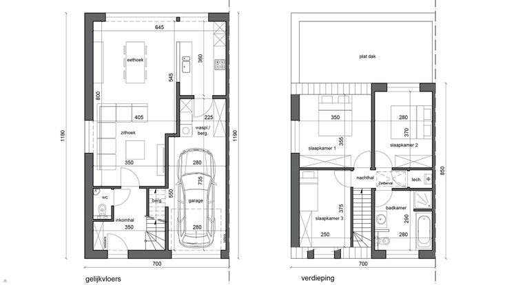
Nieuw te bouwen halfopen bebouwing te Affligem.  Voorbeeldwoning: Indeling volledig naar keuze. Onze woningen worden gebouwd met kwalitatieve en duurzame materialen. We voorzien een ruim budget voor de afwerking, zodat u kunt rekenen op een kwalitatieve en duurzame woning. Als bouwheer heeft u de vrijheid om de bouwstijl, indeling, materialen en afwerking helemaal naar wens te bepalen. Dit zorgt ervoor dat we steeds een correcte prijsberekening kunnen maken, volledig afgestemd op uw vooropgestelde budget. De prijs van de bouwgrond, inclusief de voorbeeldwoning, omvat: BTW, registratierechten, bouwcoördinatie, architectenereloon, EPB-verslag, veiligheidcoördinatie, blowerdoortest en keuring van de riolering. Extra specificaties: Ventilatiesysteem D met warmterecuperatie Zonnepanelen inbegrepen volgens de EPB-voorstudie Lucht-waterwarmtepomp type Daikin Altherma Plannen vrij te kiezen in overleg met onze huisarchitect Meer informatie en het lastenboek zijn beschikbaar op ons kantoor en kunnen op afspraak worden bekomen. Neem gerust contact met ons op. Bouwen met meerwaarde? Dat doe je met NB-Projects! Bel 053/89.35.95 of stuur een e-mail naar info@nb-projects.be   Renovatieplicht: onbekend
Type vastgoed Huis
Prijs 619.209
Bewoonbare opp. 166
Aantal slaapkamers 3
Aantal badkamers 1