Te koop Gunstig gelegen bouwgrond van 24a21ca

Beschrijving van   

Vergelijk realty's

Te koop Gunstig gelegen bouwgrond van 24a21ca

Gunstig gelegen bouwgrond van 24a21ca Gunstig gelegen bouwgrond van 24a21ca Gunstig gelegen bouwgrond van 24a21ca Gunstig gelegen bouwgrond van 24a21ca Gunstig gelegen bouwgrond van 24a21ca Gunstig gelegen bouwgrond van 24a21ca Gunstig gelegen bouwgrond van 24a21ca Gunstig gelegen bouwgrond van 24a21ca Gunstig gelegen bouwgrond van 24a21ca Gunstig gelegen bouwgrond van 24a21ca Gunstig gelegen bouwgrond van 24a21ca Gunstig gelegen bouwgrond van 24a21ca Gunstig gelegen bouwgrond van 24a21ca Gunstig gelegen bouwgrond van 24a21ca
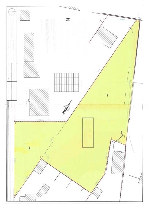
Voor meer inlichtingen of een bezoek kan u terecht via tristan@factumvastgoed.be of op het nummer 0472/99.99.00 Gunstig gelegen bouwgrond met aanpalend achterliggend lot. Stedenbouwkundige bestemming en mogelijkheden in aanvraag bij de gemeente. Eventueel mogelijk voor een open bebouwing of appartementen. De haalbaarheid en hoeveelheid dient nog bekeken te worden. De gegeven informatie en opgegeven oppervlaktes zijn louter indicatief en houden geen enkele juridische verbintenis in. Extra informatie: Overstromingsrapport: P-score A en G-score A
Type vastgoed Grond
Prijs 418.000