Te koop Appartement

Beschrijving van   

Vergelijk realty's

Te koop Appartement

Appartement Appartement Appartement Appartement Appartement Appartement Appartement Appartement Appartement Appartement Appartement Appartement Appartement Appartement Appartement
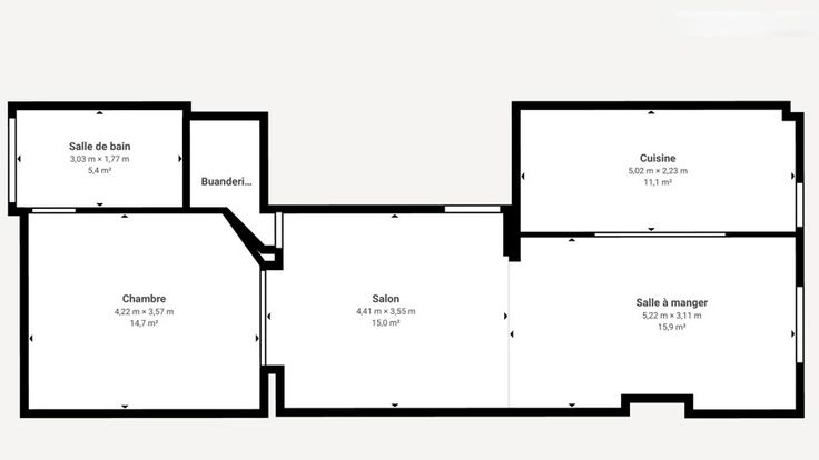
UKKEL (Brugmann / Messidor) Dicht bij Ter Kamerenbos, Vanderkindere en alle faciliteiten en vervoer; prachtig en licht karaktervol appartement (3 kamers op rij) in uitstekende staat van +/- 77m2 (volgens PEB) gelegen op de 1e verdieping van een burgerlijk gebouw met 4 appartementen. Gerenoveerd in 2016 met prachtige afwerkingen, voorzien van lijstwerk en hoge plafonds. Het pand is als volgt samengesteld: Ruime woonkamer bestaande uit 2 aangrenzende kamers +/- 34m2 - Volledig ingerichte open keuken (kookplaat, oven, vaatwasser, koelkast, vriezer) +/- 11m2 - Apart toilet met wasplaats - Slaapkamer +/- 15m2 met doucheruimte (douche, dubbele wastafel) en achterbalkon met zicht op de tuin. ENERGIE: Individuele gasboiler (2015) - Conforme elektriciteit - X2 PVC-chassis - PEB F. PRIJS: € 349.000. De eigenaar behoudt zich het recht voor om elk aanbod te accepteren of te weigeren. BESCHIKBAAR: Op aanvraag. Stedenbouwkundige informatie en plannen op aanvraag. Informatie en bezoek: sch@expertissimmo.eu & +32 2 733 76 26. ------ VIRTUELE TOUR: https://my.matterport.com/show/?m=C7fVNgp56wv ------
Type vastgoed Appartement
Prijs 349.000
Bewoonbare opp. 77
Aantal slaapkamers 1
Aantal badkamers 1