Te koop Bouwgrond

Beschrijving van   

Vergelijk realty's

Te koop Bouwgrond

Bouwgrond Bouwgrond Bouwgrond Bouwgrond Bouwgrond Bouwgrond Bouwgrond Bouwgrond
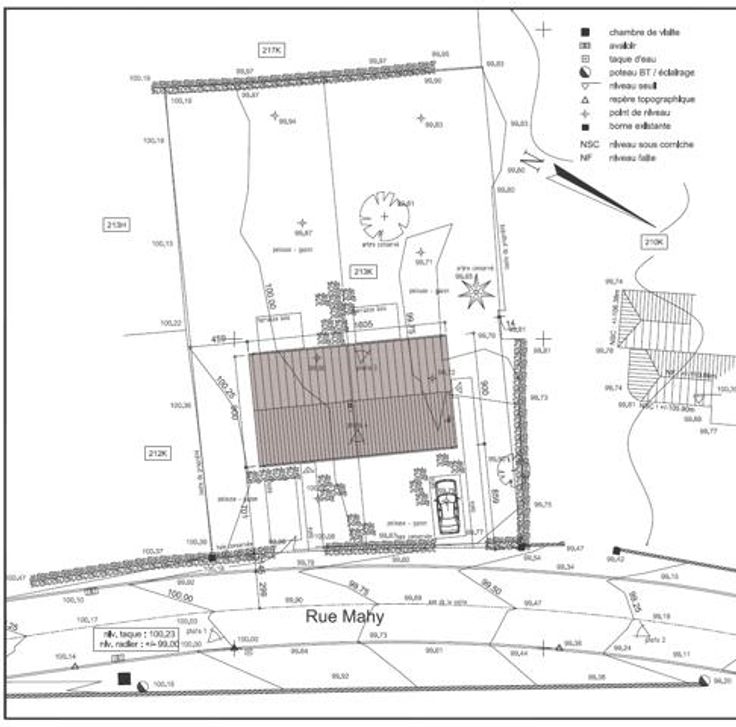
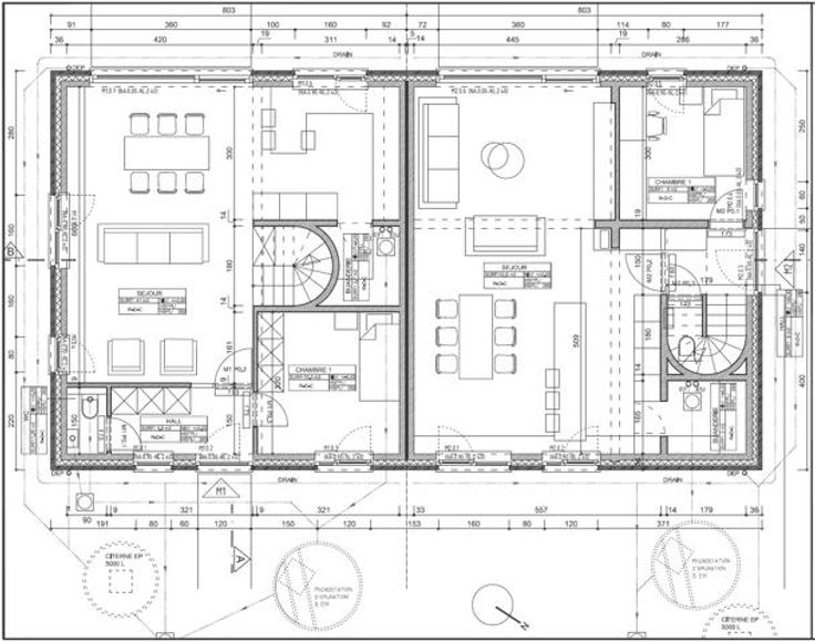
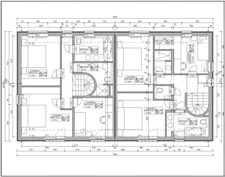
Offre àpd 120.000€. AD HOME vous présente cette belle parcelle de terrain plat à bâtir d'une superficie d'environ 973 m². Ce terrain est situé dans un cadre verdoyant idéalement placé dans les campagnes de Fernelmont. A titre informatif, un pré-accord a été obtenu avec l'urbanisme de Fernelmont pour la construction de 2 habitations. Chaque habitation se compose d'un hall d'entrée, d'un vaste séjour de 40m² ouvert sur une cuisine équipée, d'un WC indépendant, d’une buanderie et d'une chambre. L'étage se compose d'un hall de nuit, de 3 chambres, d’un WC, d'une salle de douches et d'une salle de bains. Chacune d’elle possède également un grenier. Toutefois, ce terrain pourrait accueillir une charmante villa 4 façades. Situé en zone d'habitat, ce terrain est stratégiquement positionné à proximité de toutes les commodités : 5,6 km de la N80 - 3,4 km de l'autoroute E42 - passage de la ligne TEC 816 à 55 m – école Saint-Martin à 2,6 km - gare de Namur à 14,2 km. Orientation du jardin : Ouest. Informations cadastrales : Section A n°213k. Libre de constructeur. Un cadre de vie parfait pour les familles à la recherche de tranquillité et de confort, tout en restant proche de la ville. Ne manquez pas cette occasion unique de construire la maison qui vous ressemble. Très beau potentiel, à découvrir sans tarder ! Ces informations sont délivrées à titre informatif et non contractuel.
Type vastgoed Grond
Prijs 120.000