Te koop KIJK DROOM KIES

Beschrijving van   

Vergelijk realty's

Te koop KIJK DROOM KIES

KIJK  DROOM  KIES KIJK  DROOM  KIES KIJK  DROOM  KIES KIJK  DROOM  KIES KIJK  DROOM  KIES
MOGELIJKHEID OM DEZE WONING AAN TE KOPEN AAN 6% BTW IPV 21% ONDER BEPAALDE VOORWAARDEN VAN ENIGE EN EIGEN WONING Maak een afspraak met Fabienne 0475/34.00.40 en kom langs bij ons op kantoor om alle mogelijkheden en prijzen te bespreken.  Wij helpen u graag verder in uw zoektocht naar een nieuwe woonst.    Renovatieplicht: NOT_APPLICABLE
Type vastgoed Huis
Prijs 418.932
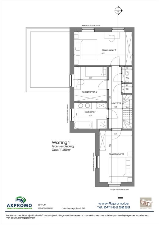
Bewoonbare opp. 160
Aantal slaapkamers 3
Aantal badkamers 1