Te koop Energiezuinige nieuwbouwwoning 3 slaapkame...

Beschrijving van   

Vergelijk realty's

Te koop Energiezuinige nieuwbouwwoning 3 slaapkamers | Casco

Energiezuinige nieuwbouwwoning 3 slaapkamers | Casco Energiezuinige nieuwbouwwoning 3 slaapkamers | Casco Energiezuinige nieuwbouwwoning 3 slaapkamers | Casco Energiezuinige nieuwbouwwoning 3 slaapkamers | Casco Energiezuinige nieuwbouwwoning 3 slaapkamers | Casco Energiezuinige nieuwbouwwoning 3 slaapkamers | Casco Energiezuinige nieuwbouwwoning 3 slaapkamers | Casco Energiezuinige nieuwbouwwoning 3 slaapkamers | Casco
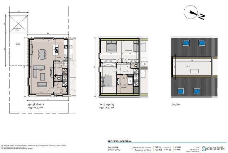
VRAAG NAAR DE UITZONDERLIJKE VOORWAARDEN TIJDENS DE KIJKDAG OP ZATERDAG 29 MAART VAN 9u30 tot 12 uur ! Deze woning wordt voor deze prijs casco aangeboden, maar kan ook opgeleverd worden mits verschilprijs. De woning is aangesloten op het stadswarmtenet, waardoor je minder afhankelijk bent van fossiele brandstoffen zoals aardgas!  Lot 21 is een halfopen bebouwing op een grondopp. van 283 m². Tijdloze woning met 151 m² bewoonbare opp. GELIJKVLOERS: inkom, wc, zeer ruime living (40 m²), open keuken met eiland, ruime berging. EERSTE VERDIEPING: 2 kinderkamers, 1 ruime slaapkamer voor de ouders, badkamer, aparte wc, stapelzolder. Leuke tuin met goeie oriëntatie. Aangrenzend aan groenzone in doodlopend straatje zonder doorgaand verkeer. Voor meer info bel 09 280 60 60 of mail naar info@durabrik.be Bezoek onze kijkwoning ter plaatse. Een afspraak maken kan via https://www.durabrik.be/nl/kijkwoningen/roeselare-honzebroekstraat * Afbeeldingen en oppervlaktes zijn indicatief. Renovatieplicht: nee
Type vastgoed Huis
Prijs 249.500
Bewoonbare opp. 152
Aantal slaapkamers 3
Aantal badkamers 1