Te koop Appartement

Beschrijving van   

Vergelijk realty's

Te koop Appartement

Appartement Appartement Appartement Appartement Appartement Appartement Appartement Appartement
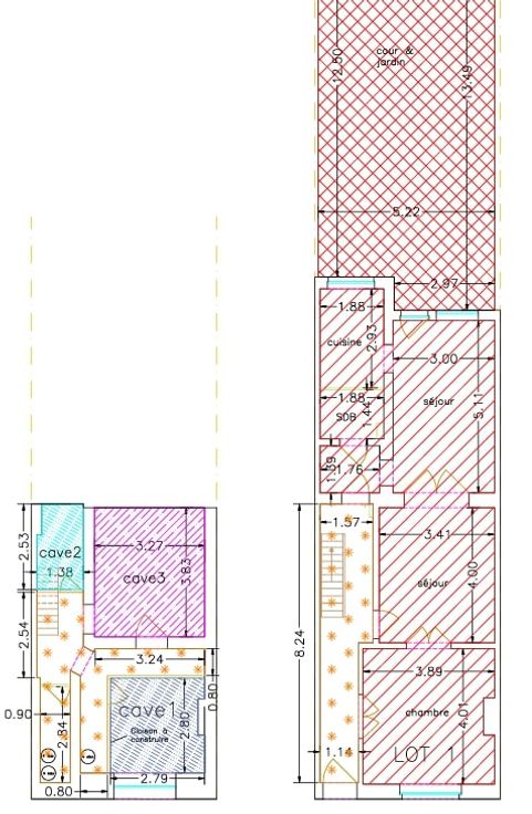
Situé à Anderlecht, à proximité des commerces et transports, cet appartement lumineux au rez-de-chaussée offre un bel espace de vie avec un jardin et une cave privatifs. L'appartement est constitué comme : Une chambre 15,5 m², un salon 14 m², une autre salon de 18m2, une salle à manger 15,5 m², une cuisine 5,5 m², une salle de douche avec WC 2,5 m², une cave 7,5 m² et un magnifique jardin privatif. Informations utiles : Chauffage central gaz PEB G À proximité des transports en commun, commerces et écoles Loué actuellement 700€/mois. Prix de vente : faire offre à partir de 180.000€. Intéressé(e) ? Contactez-nous pour une visite
Type vastgoed Appartement
Prijs 180.000
Bewoonbare opp. 57
Aantal slaapkamers 1