Te koop TE RENOVEREN APPARTEMENT MET GARAGE

Beschrijving van   

Vergelijk realty's

Te koop TE RENOVEREN APPARTEMENT MET GARAGE

TE RENOVEREN APPARTEMENT MET GARAGE TE RENOVEREN APPARTEMENT MET GARAGE TE RENOVEREN APPARTEMENT MET GARAGE TE RENOVEREN APPARTEMENT MET GARAGE TE RENOVEREN APPARTEMENT MET GARAGE TE RENOVEREN APPARTEMENT MET GARAGE TE RENOVEREN APPARTEMENT MET GARAGE TE RENOVEREN APPARTEMENT MET GARAGE TE RENOVEREN APPARTEMENT MET GARAGE TE RENOVEREN APPARTEMENT MET GARAGE
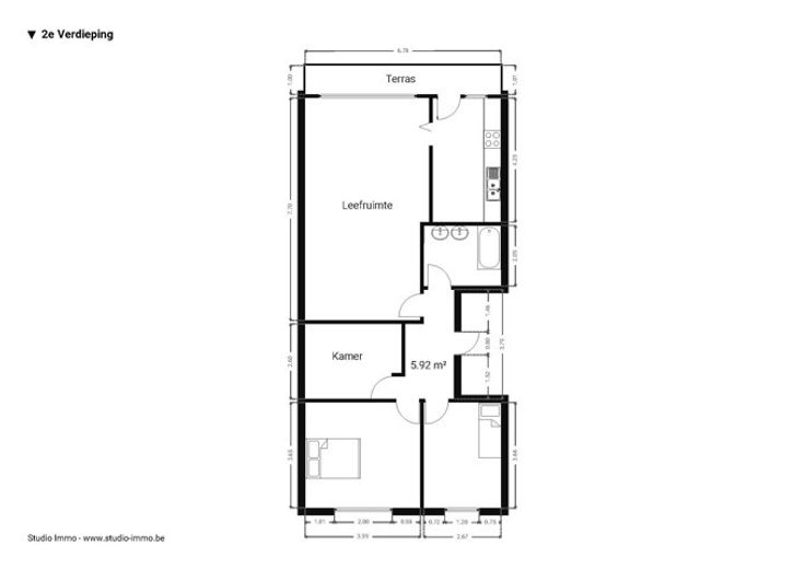
Te renoveren appartement met terras en garagebox Dit te renoveren appartement op de tweede verdieping is vlot bereikbaar met de trap of lift en biedt tal van mogelijkheden. Met een ruime leefruimte, twee slaapkamers, een grote berging, een kelderberging en een terras vormt dit een ideale basis voor wie graag zelf de handen uit de mouwen steekt. De aparte garagebox, inbegrepen in de prijs, is een grote troef. Indeling Leefruimte (35 m²) op vinyl met veel lichtinval. Keuken (10 m²) op tegel met toegang tot het terras. Twee slaapkamers (15 m² en 10 m²) op laminaat. Badkamer met bad en lavabo. Bergruimte (8 m²) en kelderberging. Apart toilet Garagebox, inbegrepen in de prijs. Troeven ✔ Rolluiken, deels dubbel glas ✔ Aparte meters nutsvoorzieningen ✔ Gemeenschappelijke kosten: €90/maand ✔ Lift en trap aanwezig Interesse? Contacteer ons op 03 535 12 75! De vermelde “bewoonbare oppervlakte” is gebaseerd op de “bruikbare vloeroppervlakte” zoals vermeld in het EPC.
Type vastgoed Appartement
Prijs 223.000
Bewoonbare opp. 101
Aantal slaapkamers 2
Aantal badkamers 1