Te huur Commerciële panden

Beschrijving van   

Vergelijk realty's

Te huur Commerciële panden

Commerciële panden Commerciële panden Commerciële panden Commerciële panden Commerciële panden Commerciële panden Commerciële panden
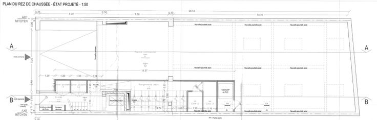
Home Standing vous propose ce local rez commercial de ± 170 m²au sein d’une petite copropriété. Loué CASCO, compteurs individuels, pas de charges communes Libre immédiatement. Entrée carrossable. wc et sanitaire. Chape en béton, haut plafond, flocage dans la première partie et poutrelles bois et acier dans la seconde et briques et en béton brut aux murs. Beaucoup de possibilité d’exploitation de cette surface commerciale ou showroom. Commerce idéal pour salle de fitness de standing, petit brico, boutique de textile outlet ou de seconde main, supermarché, magasin Bio, magasin de meubles, matelas, vélos, antiquaire, troc, boulangerie, pâtisserie et salon de thé, "épicerie fine" service distribution alimentaire, etc pas pour car wash, garagiste (réparation) ... Pas d'affectation Horeca. Compteur triphasé en 64 ampères. Précompte 320€/ mois. Immeuble de 2023. Des puits de lumière seront ouverts sur demande selon la discussion avec le futur locataire. Facilité de parkings devant la surface, possibilité de location de places de parkings supplémentaires. Très beau produit sur un axe stratégique fort fréquenté. Nouveau bail commercial, pas de reprise, pas de fonds de commerce, ni de pas de porte à reprendre. Honoraires d'agence à charges du bailleur. Opportunité à ne pas manquer ! Loyer 2000€ Précompte 320€/ mois Annonce non-contractuelle, non-opposable et sans reconnaissance préjudiciable. Visites sur rendez-vous +32475367336
Type vastgoed Commercieel
Prijs 2.420
Bewoonbare opp. 170