Te koop Huis

Beschrijving van   

Vergelijk realty's

Te koop Huis

Huis Huis Huis Huis Huis Huis Huis Huis Huis Huis Huis Huis Huis Huis
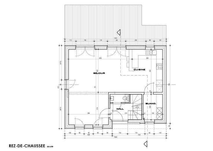
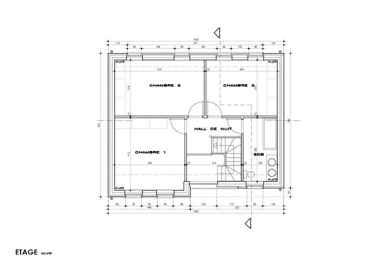
Ceci est une idée de projet, avec une liberté totale de modification pour construire la maison de vos rêves. Nous vous proposons ce projet sur un superbe terrain à bâtir, situé à Saint-Nicolas. Ce terrain possède une superficie de 1467m², une façade de 15 mètres et une profondeur de 69mètres. L'emplacement de ce terrain est très avantageux, à seulement 1 min d'un arrêt de bus et à moins de 5 minutes des commodités. De plus, l'accès à l'autoroute E42 est à moins de 5 minutes, ce qui permet de rejoindre Liège, Namur en un rien de temps. Ce terrain vous est proposé avec un projet de construction d'une maison 4 façades. Description du projet proposé, Maison 4 façades de 150m2 : Au rez-de-chaussée, vous retrouverez un hall d'entrée, un séjour très lumineux avec une cuisine ouverte, une buanderie et un WC. Un hall de nuit, se trouvant à l'étage, vous donnera accès à 3 belles chambres ainsi qu'à une salle de bain. Le projet est entièrement modulable et personnalisable en fonction de la personnalisation du projet. Le projet est entièrement modulable et personnalisable en fonction de la personnalisation du projet. Prix : terrain + projet de construction : 311 556€ Hors frais Le prix est donné à titre indicatif et pourra être modifié en fonction des ajustements apportés au projet. Pour plus de renseignements, nous restons disponibles durant les heures de bureau.
Type vastgoed Huis
Prijs 311.556
Bewoonbare opp. 150
Aantal slaapkamers 3
Aantal badkamers 1