Te huur Industriële gebouwen

Beschrijving van   

Vergelijk realty's

Te huur Industriële gebouwen

Industriële gebouwen Industriële gebouwen Industriële gebouwen Industriële gebouwen Industriële gebouwen Industriële gebouwen Industriële gebouwen Industriële gebouwen Industriële gebouwen
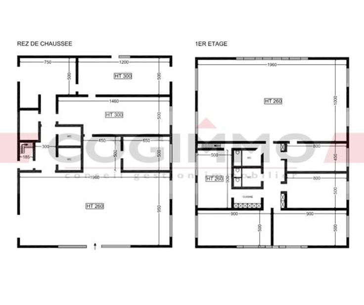
Nous vous proposons à la location un bâtiment commercial polyvalent réparti sur deux niveaux, idéal pour vos activités commerciales, industrielles ou administratives. Rez-de-chaussée (490 m²) : • Espace d’exposition / showroom : 186 m² • Bureau d’accueil : 22,5 m² • Bureau fermé : 32,5 m² • Bureau / espace de stockage : 73 m² • Zone de livraison avec accès par porte de garage : 60 m² + 37,5 m² • Local technique, sanitaires (WC et douches) Premier étage (490 m²) : • Grand espace bureau : 196 m² • 3 pièces bureaux : 45 m² chacune • 1 pièce bureau : 36 m² • 1 pièce bureau : 40 m² • Sanitaires (WC) et cuisine Extérieurs et accès : • Terrain total : 2 363 m² • Accès sécurisé grâce à des portails et grilles électriques • Parking privé Loyer mensuel : 4 000 € Situé dans la Zone Industrielle de Leuze-en-Hainaut, ce bâtiment offre une excellente visibilité et un accès rapide aux axes routiers. Pour plus d'informations, rendez-vous en agence ou contactez-nous au 069/77.92.77
Type vastgoed Commercieel
Prijs 4.000
Bewoonbare opp. 980