Te koop Gebouw voor gemengd gebruik

Beschrijving van   

Vergelijk realty's

Te koop Gebouw voor gemengd gebruik

Gebouw voor gemengd gebruik
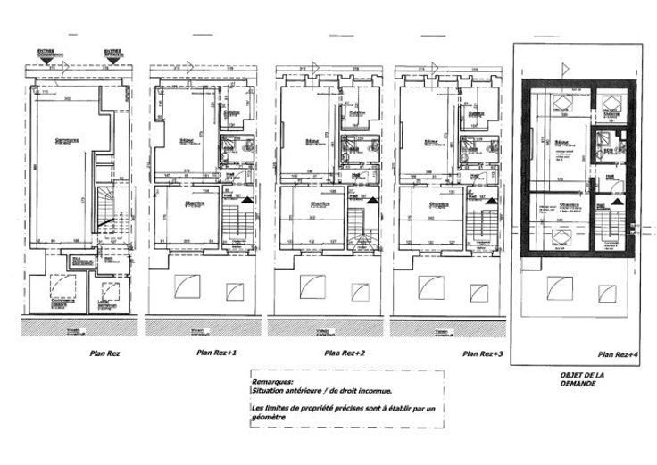
Immeuble de rapport mixte idéalement situé en plein centre de Mons, offrant une rentabilité immédiate avec un revenu locatif mensuel actuel de 3.680,00 €. Ce bien se compose d’un rez-de-chaussée commercial de +/- 50 m², pouvant être loué 1.550 € par mois (actuellement occupé par un salon de coiffure), avec une réserve incluse. À l’étage, 4 appartements de +/- 55 m² chacun comprennent un hall, un séjour, une cuisine, une salle de bains et une chambre. Actuellement loué entre 450€ et 560€. Côté technique : le CC mazout alimente le RDC ainsi que les 3 premiers appartements, tandis qu’une chaudière au gaz dessert le 4ème appartement. Tous les compteurs d’eau, de gaz et d’électricité sont séparés. Installation électrique en conformité RC : 3.100,00 € Par souci de discrétion et de respect pour les locataires, nous n’affichons pas de photos. Pour plus d’informations ou pour visiter ce bien exceptionnel, n’hésitez pas à nous contacter.
Type vastgoed Huis
Prijs 350.000
Bewoonbare opp. 217
Aantal slaapkamers 4
Aantal badkamers 4