Te koop Gelijkvloers kantoor met zonnige tuin

Beschrijving van   

Vergelijk realty's

Te koop Gelijkvloers kantoor met zonnige tuin

Gelijkvloers kantoor met zonnige tuin Gelijkvloers kantoor met zonnige tuin Gelijkvloers kantoor met zonnige tuin Gelijkvloers kantoor met zonnige tuin Gelijkvloers kantoor met zonnige tuin Gelijkvloers kantoor met zonnige tuin Gelijkvloers kantoor met zonnige tuin Gelijkvloers kantoor met zonnige tuin Gelijkvloers kantoor met zonnige tuin Gelijkvloers kantoor met zonnige tuin Gelijkvloers kantoor met zonnige tuin Gelijkvloers kantoor met zonnige tuin Gelijkvloers kantoor met zonnige tuin Gelijkvloers kantoor met zonnige tuin Gelijkvloers kantoor met zonnige tuin Gelijkvloers kantoor met zonnige tuin
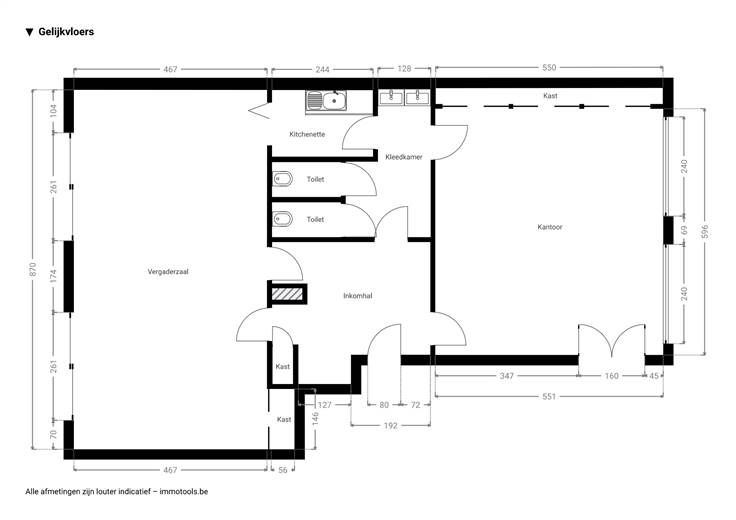
Licht, gelijkvloers kantoor (of appartement) met zonnige tuin van 200 m² en ruime kelder in hartje Turnhout. Op Graatakker 150, in een straat met heel wat bomen én parkeerplaats, vind je dit ruime gelijkvloers, dat momenteel gebruikt wordt als kantoor. Je stapt de inkomhal binnen, waarbij je twee ingangen hebt: eentje rechts door de dubbele glazen deur, het lichte kantoor aan de straatkant (de vroegere woonkamer) met z’n grote ingemaakte kast, en een tweede inkom wat verderop in de hal, waarbij je de centrale hal van het kantoor binnenkomt. In deze hal heb je toegang tot een betegelde hal met twee toiletten, die verderop doorsteekt naar een met een kitchenette. Initieel was dit de badkamer, dus je kunt bij een renovatie de lay-out opnieuw hertekenen naar wens. Eén verdieping lager, op min één, heb je ook nog een giga, droge kelder van 70 m², die is onderverdeeld in verschillende ruimtes. Je kunt hier dus nog een atelier van maken, of een bergruimte XL, of ga je toch loch liever voor een fitnessplek? Jij kiest! Links achteraan heb je nu een enorme vergaderzaal met ingemaakte kasten van maar liefst 44 m², waar je vergadert met zicht op de grote groene tuin die je door de kamerbrede glazen schuifdeuren kunt zien. Je kunt deze ruimte ook opnieuw opvormen tot twee slaapkamers. De tuin zelf is de grootste verrassing van dit pand: 200 m² vol groen, struiken en bomen, en dat in de stad! Voor meer info: https://www.immovasta.be/panden/gegevens/13825/
Type vastgoed Commercieel
Prijs 199.000
Bewoonbare opp. 115
Aantal badkamers 1