Te koop Goedgelegen bouwgrond

Beschrijving van   

Vergelijk realty's

Te koop Goedgelegen bouwgrond

Goedgelegen bouwgrond
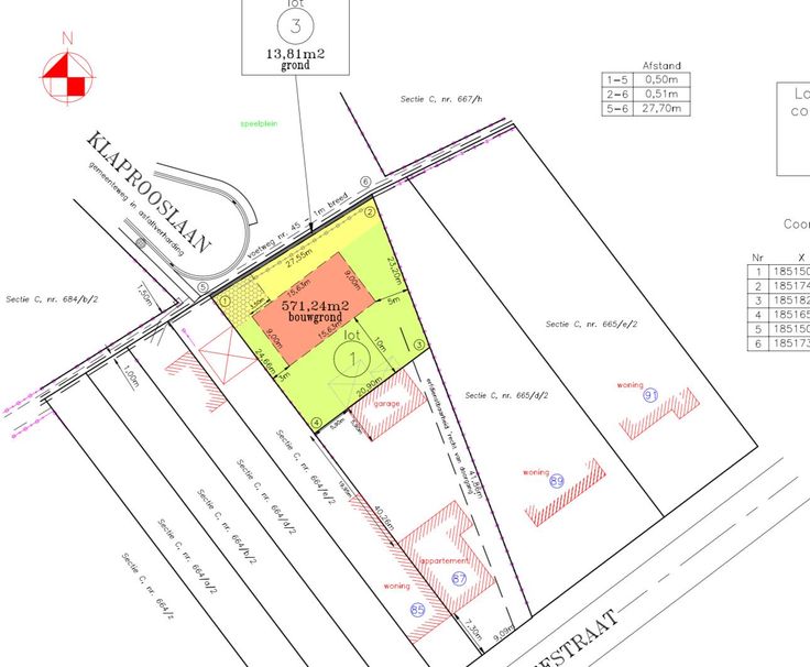
Bouwgrond voor open bebouwing aan het einde van de Klaprooslaan.
Type vastgoed Grond
Prijs 190.000