Te koop Prachtig gelegen bouwgrond voor villabouw.

Beschrijving van   

Vergelijk realty's

Te koop Prachtig gelegen bouwgrond voor villabouw.

Prachtig gelegen bouwgrond voor villabouw. Prachtig gelegen bouwgrond voor villabouw. Prachtig gelegen bouwgrond voor villabouw.
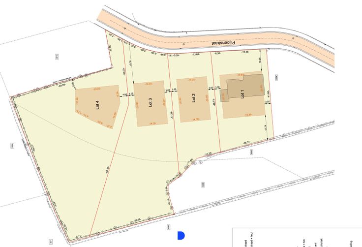
Uitstekend gelegen bouwgrond met een oppervlakte van 2.168m² (lot 3) nabij het centrum van Roeselare en alle belangrijke invalswegen. Mooi landelijk verzicht & rustige omgeving. Details: - open bebouwing - geen bouwverplichting Contact: Voor meer informatie of een bezoek, contacteer Stijn op 0491 61 42 19 of info@stijndebusschere.be Renovatieplicht: NOT_APPLICABLE
Type vastgoed Grond
Prijs 475.000