Te koop Prachtig perceel bouwgrond.

Beschrijving van   

Vergelijk realty's

Te koop Prachtig perceel bouwgrond.

Prachtig perceel bouwgrond. Prachtig perceel bouwgrond. Prachtig perceel bouwgrond. Prachtig perceel bouwgrond. Prachtig perceel bouwgrond.
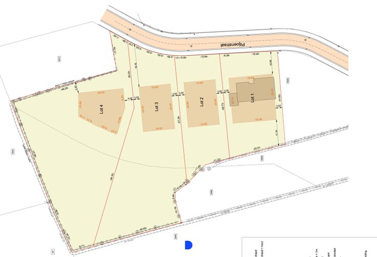
Uitstekend gelegen & ruim perceel bouwgrond met een oppervlakte van 2.714m² (lot 4) nabij het centrum van Roeselare en alle belangrijke invalswegen. Mooi landelijk verzicht & rustige omgeving. Details: - open bebouwing - geen bouwverplichting - bouwvoorschriften beschikbaar op eenvoudig verzoek Contact: Voor meer informatie of een bezoek, contacteer Stijn op 0491 61 42 19 of info@stijndebusschere.be Renovatieplicht: NOT_APPLICABLE
Type vastgoed Grond
Prijs 550.000