Te koop Bouwgrond

Beschrijving van   

Vergelijk realty's

Te koop Bouwgrond

Bouwgrond
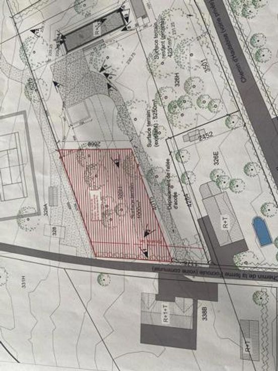
Pôle immobilier a le plaisir de vous présenter ce magnifique terrain à bâtir de 10 ares, situé dans l'un des quartiers les plus recherchés de Wépion, la Petite Sibérie. Ce terrain bénéficie d’une orientation idéale, vous assurant ainsi de profiter du soleil tout au long de la journée. Ce terrain est parfaitement adapté à la construction d’une villa 4 façades, offrant une belle superficie pour réaliser votre projet immobilier. L'emplacement est calme, verdoyant et à proximité des commodités locales, des écoles et des transports. Caractéristiques principales : Superficie : Un peu plus de 10 ares. Largeur: 26,68 m et profondeur : 40 m Destiné à la construction d'une villa 4 façades Orientation ouest à l'avant et est à l'arrière Libre de constructeur Faire offre à partir de 160.000 euros (sous réserve d'acceptation des vendeurs).  Renseignements et visites: 081/403.203
Type vastgoed Grond
Prijs 160.000