Te koop Appartementsblok

Beschrijving van   

Vergelijk realty's

Te koop Appartementsblok

Appartementsblok Appartementsblok Appartementsblok Appartementsblok Appartementsblok Appartementsblok Appartementsblok Appartementsblok Appartementsblok Appartementsblok Appartementsblok Appartementsblok Appartementsblok
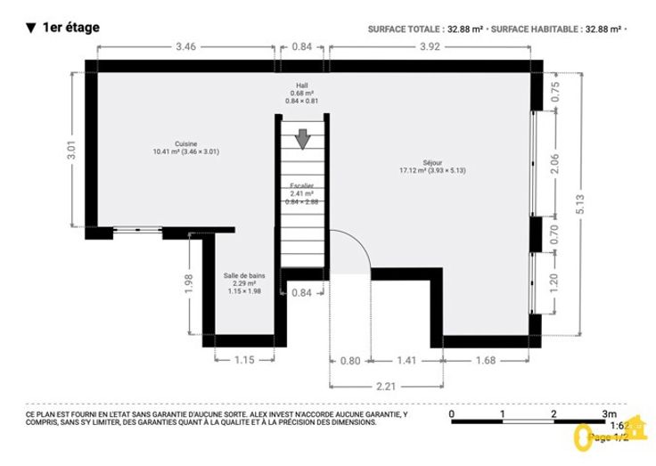
Immeuble de rapport de +/- 93 m² habitables comprenant un petit appartement et un appartement Duplex. L'immeuble se compose comme suit : hall d'entrée commun, appartement au rez-de-chaussée de +/- 33 m² : Séjour ouvert sur la cuisine non équipée, une chambre de +/- 9 m², une salle de douche, une cave avec espace buanderie et WC séparé. 1er étage : appartement duplex de +/- 61 m² composé comme suit : un séjour de +/- 17 m², une cuisine semi-équipée, salle de douche avec WC. 2ème étage : 1 chambre de +/- 19 m² et un espace grenier pour rangement. Châssis PVC double vitrage, chauffage convecteur électrique. Les compteurs électriques sont séparés et un compteur commun pour l'eau. Revenus locatifs actuels de 765€/mois, revenus potentiels de +/- 1.000€/mois. Faire offre à partir de 110.000€ sous réserve de l'acceptation des propriétaires. Ne tardez pas à planifier une visite pour ce bien d'investissement qui ne restera pas longtemps sur le marché ! PEB rez-de-chaussée (9) : G, 531 Wh/m².an, 22575 kWh/an, validité jusqu'au 13/03/2035 N° 20250313025783, 137 kg CO2/m².an. PEB 1er étage (9/0101) : G, 666 kWh/m².an, 42219 kWh/an, validité jusqu'au 13/03/2035 N° 20250313025620, 172 kg CO2/m².an.
Type vastgoed Huis
Prijs 110.000
Bewoonbare opp. 93
Aantal slaapkamers 2
Aantal badkamers 2