Te koop Huis

Beschrijving van   

Vergelijk realty's

Te koop Huis

Huis Huis Huis Huis Huis Huis Huis Huis Huis Huis Huis Huis Huis Huis
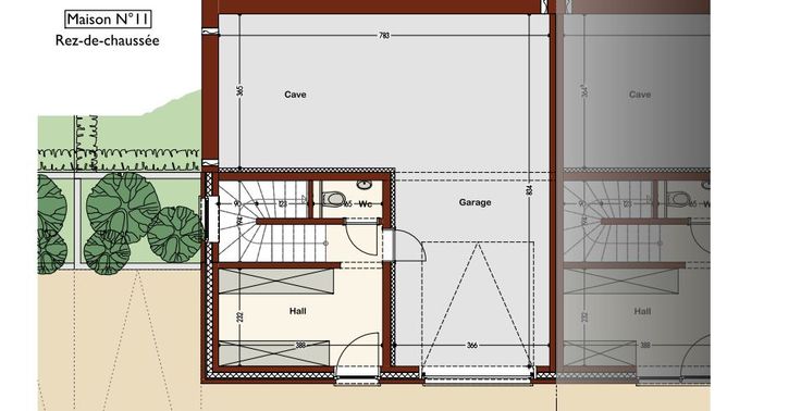
Visites sur rdv du mardi au samedi. Situé dans un nouveau lotissement à proximité de toutes les commodités, La société Concept Confort vous propose des maisons clé sur porte, qui se distinguent par leur niveau de finitions soignées et leurs équipements de qualité. Le projet met l'accent sur votre confort de vie et sur votre quiétude. Ce cadre unique et durable représente une opportunité rare, pour y vivre ou pour investir. Les maisons (bel-étage) se composent au rdc ; d'un garage, d'une cave, d'un WC et d'un hall d'entrée, au 1er étage ; d'un bureau, d'un séjour, d'une salle à manger, d'une cuisine full équipée, au 2ème ; de trois chambres, d'une salle de bain, d'une buanderie et d'un WC + terrasse et jardin aménagés compris dans le prix. Vous apprécierez les finitions soignées et l'équipement supérieur (chauffage par le sol, chaudière à condensation, cuisine full équipée, electros Siemens, ventilation double flux, etc.), l'isolation bien étudiée et les performances énergétiques de haut niveau (panneaux solaires - PEB A+). Le confort de votre intérieur se prolonge dans les espaces extérieurs : toutes les maisons disposent de vastes terrasses et jardins qui sont des véritables espaces de vie. Livraison été 2025. Adresse : rue de la Viole 1 6150 Anderlues Plus d’infos et prise de rdv : 0495130006
Type vastgoed Huis
Prijs 340.000
Bewoonbare opp. 230
Aantal slaapkamers 3
Aantal badkamers 1